**Standout Features:**
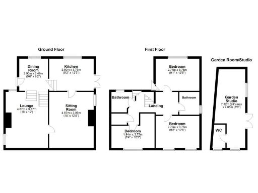
- Detached character cottage previously two homes
- 3 bedrooms, 2 bathrooms plus a serviced studio
- 3 reception rooms, including a cozy lounge with wood-burning stove
- Attractively fitted handcrafted kitchen
- Enclosed garden with flower beds, vegetable patches, and secure parking with electric car charging point
- Close to local walks and excellent village amenities
- Freehold tenure, mains gas central heating, sealed unit double glazing
**Notable Concerns:**
- Requires cosmetic renovations
- Some glazed units need replacement
Nestled in the charming village of Meltham, this unique detached character cottage offers an abundance of space and charm, perfect for families or those seeking a tranquil sanctuary near the Peak District. The property boasts three well-sized bedrooms, two bathrooms, and a versatile serviced studio ideal for an office or guest accommodation. With three reception rooms, including a warm lounge featuring a wood-burning stove, you'll find the perfect spots for cozy family gatherings or entertaining guests.
While the cottage retains its rustic allure and character, it does require some cosmetic attention, providing you with the chance to put your personal touch on its décor. Step outside to discover a delightful enclosed garden with vibrant flower beds, vegetable patches, and plenty of space for outdoor barbecues, giving you a private oasis to unwind. The gated driveway offers secure parking, complete with an electric car charging point.
The property is conveniently located near local primary schools, lush countryside walks, and a variety of village amenities, making it ideal for families and outdoor enthusiasts. Don’t miss the opportunity to own this charming and flexible cottage—it’s a rare find that won’t last long in today’s market! Schedule a viewing today to experience its potential firsthand.











































































































































