Contemporary three-bedroom freehold with garden and two-car parking, built 2022 by Bellway Homes..
Built 2022 by Bellway Homes (Japonica design)
Freehold detached three-bedroom, two-bathroom home
Approx 924 sq ft — modest footprint for larger families
Enclosed rear garden with paved patio and lawn
Driveway parking for two cars; decent plot size
Service charge c. £300/year (below average)
Council Tax Band D — moderate ongoing cost
Very low local crime; excellent mobile and fast broadband
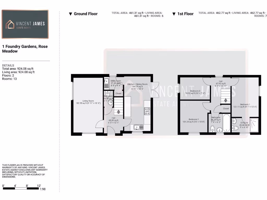
This modern three-bedroom detached house, built in 2022 by Bellway Homes, offers a low-maintenance family layout in the popular Rose Meadow development. The ground floor features a generous lounge, practical kitchen-diner with integrated appliances and a separate utility, while the first floor provides a master bedroom with ensuite plus two further bedrooms and a family bathroom. The property is freehold and finished to contemporary new-build standards.
Outside, an enclosed rear garden, paved patio and lawn give private outdoor space for children and pets, and the driveway provides off-street parking for two cars. The plot is described as decent for the area and the overall setting benefits from very low crime, excellent mobile signal and fast broadband — useful for commuters and home workers.
Specify-buyers should note the home’s footprint is modest at about 924 sq ft, which suits typical family needs but may feel tight for those needing extensive living or storage space. There is an annual service charge of approximately £300 (below average), and council tax sits in Band D which prospective buyers should factor into ongoing costs. Built recently, the property requires minimal immediate maintenance but offers limited scope for major extension without planning.
Well-located for local schools (including an Outstanding nearby secondary) and set in an affluent, quiet suburban area, this detached home will appeal to growing families or professionals seeking a modern, low-upkeep property. Viewing is recommended to appreciate the layout, garden and parking provision in person.
3 bedroom detached house for sale in Hamman Drive, Knutsford, WA16 — £485,000 • 3 bed • 2 bath • 1236 ft²
3 bedroom detached house for sale in Medlock Street, Northwich, Cheshire, CW9 — £325,000 • 3 bed • 2 bath • 948 ft²
3 bedroom detached house for sale in Regiment Way, Winsford, CW7 — £260,000 • 3 bed • 2 bath • 922 ft²
3 bedroom detached house for sale in Ribble Avenue, Northwich, CW9 — £325,000 • 3 bed • 2 bath • 1038 ft²
3 bedroom detached house for sale in Hamman Drive, Knutsford, WA16 — £489,950 • 3 bed • 2 bath • 1043 ft²
4 bedroom detached house for sale in London Road,
Northwich,
CW9 8GA, CW9 — £389,995 • 4 bed • 1 bath • 1293 ft²


































































































































