E14 8LS - 2 bed canary wharf two bedroom in Westferry Road, E14 8LS

View on Property Piper

2 bedroom flat for sale in Franklin Building, Westferry Road, London, E14

Summary - FRANKLIN BUILDING, 10 FLAT 1 WESTFERRY ROAD LONDON E14 8LS

2 bed 2 bath Flat

Well-located modern flat with parking and gym, sold at online auction.
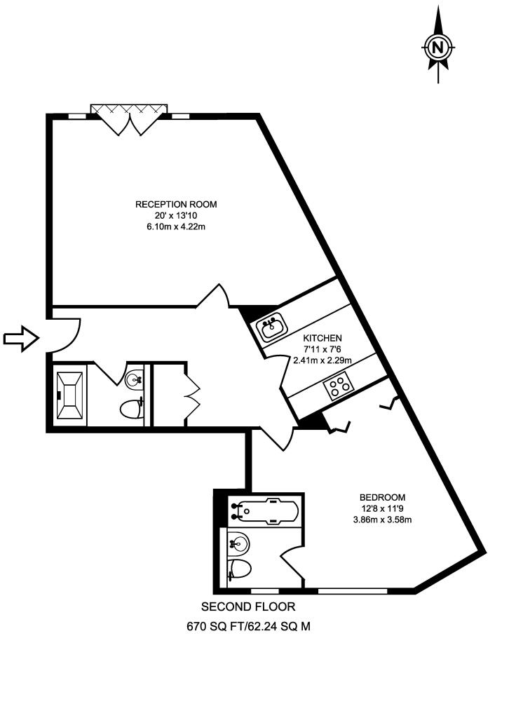
727 sq ft two-bedroom, two-bathroom apartment
Set on the edge of Canary Wharf, this well-proportioned two-bedroom flat offers 727 sq ft of bright, contemporary living. Large windows fill the reception and bedrooms with natural light, while a modern fitted kitchen and full-size bathroom provide practical, move-in-ready spaces. The building benefits from an on-site porter, gated allocated off-street parking and a communal gym — rare conveniences for city living.

The apartment sits on the second floor and includes an ensuite main bedroom with good storage plus a separate second bedroom, making it suitable for sharers, young families or professionals seeking flexible space close to the City. Transport links, shopping and riverside amenities are all within easy reach.

Important considerations: the property is leasehold and will be sold at an online auction (23 October 2025), so buyers should be prepared for the auction process and timescales. The EPC rating is D and the property uses electric heating and an electric boiler, which may affect running costs compared with gas-heated homes.

Overall this is a practical, well-located flat with communal facilities and parking that will suit buyers wanting immediate access to Canary Wharf’s workplaces and lifestyle. Because of the auction sale and the leasehold tenure, viewing the legal pack and confirming service charge and lease details before bidding is recommended.

Property Details

Image Descriptions

Textual Property Features

Target Audience

AI Tags

Detected Visual Features

EPC Details

Nearby Schools

Nearest Bars And Restaurants

,,,,}

Nearest General Shops

,,}

Nearest Grocery shops

,,}

Nearest Supermarkets

,,}

Nearest Religious buildings

,,}

Nearest Medical buildings

,,,}

Nearest Airports

,,}

Nearest Leisure Facilities

,,,,}

Nearest Tourist attractions

,,}

Nearest Train stations

,,,,}

Nearest Bus stations and stops

,,,,}

Nearest Hotels

,,}

Tags

Local Market Stats

AirBnB Data

Similar Properties

Meta

High Res Images

Compatible Images

Low res Images

Thumbnails

Raw Images