SY16 2HB - Plot for sale in Building Plot at, Crescent Street, Newtown…

View on Property Piper

Plot for sale in Building Plot at, Crescent Street, Newtown, Powys, SY16 2HB, SY16

Summary - Building Plot at, Crescent Street, Newtown, Powys, SY16 2HB SY16 2HB

1 bed 1 bath Plot

Cleared freehold plot with full planning for a four-bed home — auction sale, conservation area..
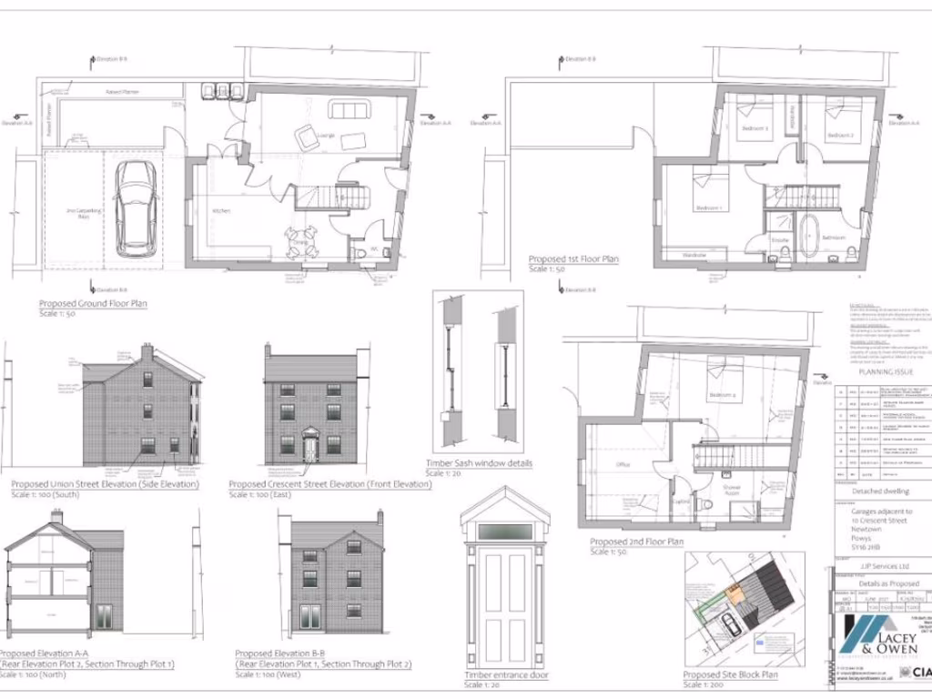
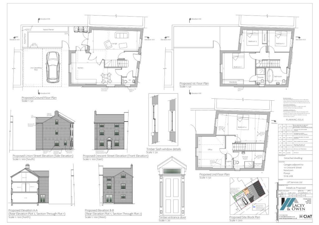
Full planning granted for four-bedroom detached house (ref 21/1604/CAC)
A ready-to-go development opportunity in Newtown with full planning permission for a contemporary four-bedroom detached house. The cleared, fenced plot sits close to the town centre and benefits from off-street parking, a private garden and no flood risk — attractive selling points for owner-occupiers or buy-to-let purchasers once built.

Full planning (ref 21/1604/CAC) is granted, saving encouragement and early-stage cost. The plot is freehold (to be verified by solicitor) and will be offered by online auction (7–9 October 2025), with vacant possession on completion. Local infrastructure is strong: excellent mobile signal, fast broadband and nearby amenities including shops, schools and leisure facilities.

Important constraints and risks are clear. The site sits within a conservation area, which may restrict design changes and require specific materials or approvals during construction. The wider area scores as very deprived, so rental yields or resale values should be assessed against local market conditions. Buyers should also confirm title details, planning conditions and any Section 106 or local authority requirements before bidding.

This plot suits developers, builders or investors looking for a near-town new-build project where planning is already in place. The combination of cleared land, planning consent and good services reduces early uncertainty, but conservation constraints and local socioeconomic factors make thorough due diligence essential.

Property Details

Image Descriptions

Textual Property Features

Target Audience

AI Tags

Detected Visual Features

Nearest Bars And Restaurants

,,,,}

Nearest General Shops

,,}

Nearest Grocery shops

,,}

Nearest Supermarkets

,,}

Nearest Religious buildings

,,}

Nearest Medical buildings

,,,}

Nearest Leisure Facilities

,,,,}

Nearest Tourist attractions

,,}

Nearest Train stations

,,,,}

Nearest Bus stations and stops

,,,,}

Nearest Hotels

,,}

Tags

Local Market Stats

Similar Properties

Meta

High Res Images

Compatible Images

Low res Images

Thumbnails

Raw Images