Four-bedroom family home with huge garden and garage near schools and amenities.
Exceptional 300ft mature rear garden — very large plot
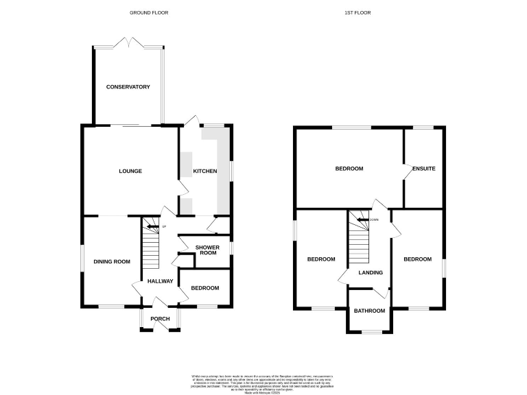
Set well back from the road on an unusually large plot, this four-bedroom detached home prioritises outdoor living with an exceptional 300ft mature rear garden — rare for the area and ideal for children, gardeners or entertaining. The house retains period character (Tudor Revival bays, chimney and decorative plasterwork) while offering practical family spaces including three reception rooms, a conservatory and an en-suite to the master bedroom.
Practical benefits include off-road parking, a garage and freehold tenure. There are three bathrooms which help busy households, and broadband speeds are reported as fast. Nearby primary schools include two rated Good, with local amenities and bus links within walking distance.
Buyers should note the property sits in an area described as deprived with above-average local crime statistics. The plot and internal layout offer clear potential for updating or extending (subject to planning) for those seeking to add value. Flooding risk is reported as none.
Guide price is £425,000–£450,000. This home will suit families wanting generous outdoor space and period character, or buyers looking for a spacious property with scope to modernise and capitalise on the large garden and plot.
4 bedroom detached house for sale in Blyford Road, Clacton-On-Sea, CO16 — £375,000 • 4 bed • 2 bath • 1013 ft²
5 bedroom detached house for sale in Frinton Road, Thorpe-Le-Soken, CO16 — £650,000 • 5 bed • 3 bath • 2559 ft²
4 bedroom detached house for sale in Vicarage Gardens, Clacton-On-Sea, CO15 — £400,000 • 4 bed • 2 bath • 1690 ft²
3 bedroom detached bungalow for sale in The Green, Clacton on Sea, CO16 — £350,000 • 3 bed • 1 bath
3 bedroom detached house for sale in Foundry Lane, Copford, CO6 — £475,000 • 3 bed • 1 bath
4 bedroom detached house for sale in Jaywick Lane, Clacton on Sea, CO16 — £450,000 • 4 bed • 2 bath • 1231 ft²






















































































































































