Move-in-ready two-bedroom starter home near amenities and good transport links.
Built 2021 with six years NHBC cover remaining
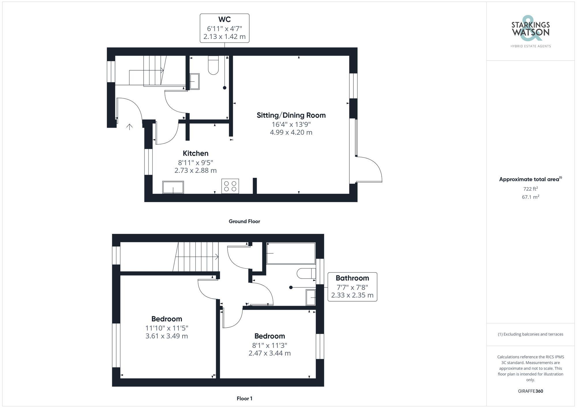
Open-plan living with part-vaulted glazing and integrated kitchen
Two double bedrooms and family bathroom
Allocated off-road parking; on-street parking to front
Enclosed rear garden with two patios and lawn; small plot
Mains gas boiler, radiators; EPC rating B
Fast broadband and excellent mobile signal
Area has pockets of deprivation; check local parking demand
Built in 2021 and with six years of NHBC cover remaining, this modern mid-terrace townhouse offers bright, open-plan living across two floors. The kitchen includes integrated appliances and the living space benefits from part-vaulted glazing that floods the room with natural light. Two double bedrooms and a family bathroom suit first-time buyers or couples seeking a low-maintenance starter home.
Externally the property has an enclosed rear garden with two patio areas and lawn, plus allocated off-road parking to the rear. Practical details include mains gas central heating, a B EPC rating and fast broadband — useful for remote working and everyday convenience. The home is freehold and presented in a contemporary style with herringbone flooring to the ground floor and useful storage including under-stairs space.
Prospective buyers should note the plot and garden are modest in size and the area has pockets of deprivation despite generally low crime locally. On-street parking is available to the front but demand should be checked, even though an allocated parking space is provided at the rear. Nearby schools are mixed in performance; several good secondary options are within reach.
Overall this is a practical, move-in-ready property aimed at first-time buyers or buy-to-let investors seeking a modern, low-maintenance home with good light, reasonable running costs and straightforward transport and digital connectivity.
2 bedroom end of terrace house for sale in Chapel Road, Attleborough, NR17 — £230,000 • 2 bed • 2 bath • 593 ft²
4 bedroom link detached house for sale in Linnet Drive, Attleborough, NR17 — £400,000 • 4 bed • 2 bath • 1207 ft²
3 bedroom end of terrace house for sale in Peacock Way, Attleborough, NR17 — £280,000 • 3 bed • 2 bath • 980 ft²
2 bedroom semi-detached house for sale in Magpie Place, Wymondham, Norfolk, NR18 — £230,000 • 2 bed • 1 bath • 676 ft²
3 bedroom end of terrace house for sale in Peacock Way, Attleborough, NR17 — £280,000 • 3 bed • 2 bath • 875 ft²
4 bedroom detached house for sale in Wellington Road, Attleborough, NR17 — £375,000 • 4 bed • 2 bath • 1163 ft²






































































