**Standout Features:**
- EWS1 Certified for safety and compliance
- Investment purchase only with a current tenant at £1,050 pcm, providing a 7% gross yield
- Modern, open plan living area with fitted kitchen
- Attractive communal gardens and rooftop terrace
- Close proximity to Salford Quays, Metro links, and Manchester City Centre
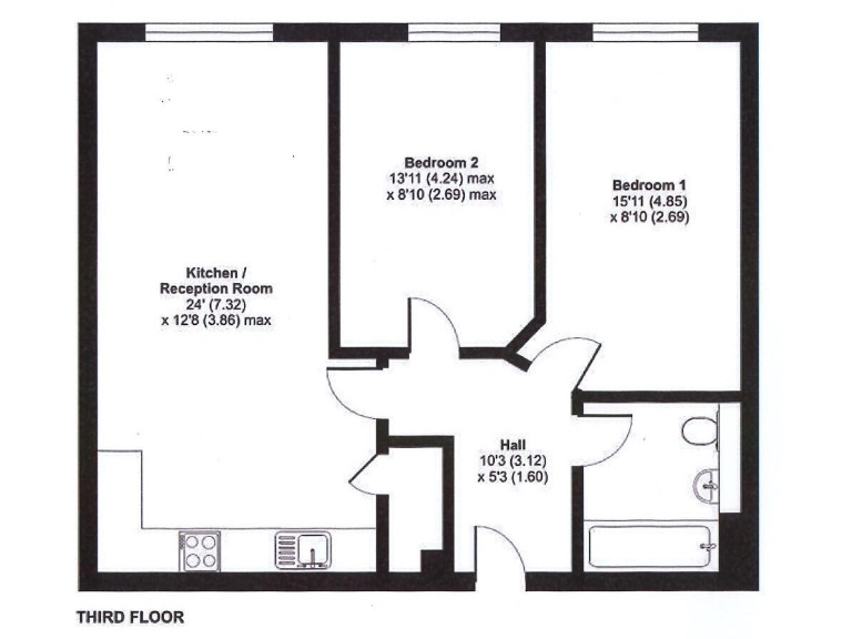
This contemporary 2-bedroom apartment, situated on the third floor, offers an excellent investment opportunity in a vibrant urban setting. Spanning 678 sq ft, it features bright, airy interiors accented by double glazing, electric heating, and an intercom entry system. The spacious open plan lounge/dining room/kitchen creates a seamless flow, perfect for modern living. Both bedrooms overlook tranquil communal gardens, and the stylish kitchen boasts integrated appliances and sleek contemporary finishes.
Future potential for renovations or enhancements is present, with a long lease of 242 years and affordable council tax, making this a financially appealing option. While the surrounding area is classified as "multi-ethnic hardship," the property benefits from excellent nearby amenities including shops, schools, and social facilities.
The apartment’s strong rental yield makes it an attractive choice for investors looking to maximize their portfolio in a desirable location close to city amenities. Don't miss this opportunity; properties like this in a central urban locale tend to move quickly!
1 bedroom flat for sale in Bridgewater Point, Worrall Street, Salford, M5 — £145,000 • 1 bed • 1 bath • 448 ft²
2 bedroom flat for sale in Worrall Street, Salford, M5 — £200,000 • 2 bed • 1 bath • 650 ft²
2 bedroom property for sale in Bridgewater Point, Worral Street, Salford, M5 — £150,000 • 2 bed • 1 bath • 629 ft²
2 bedroom apartment for sale in 4 Wharf End, Trafford Park, Manchester, M17 — £230,000 • 2 bed • 2 bath • 700 ft²
1 bedroom apartment for sale in Bridgewater Gate, Woden Street, Salford, M5 — £130,000 • 1 bed • 1 bath • 423 ft²
1 bedroom apartment for sale in Bridgewater Point, Ordsall Lane, Salford, M5 4TX, M5 — £130,000 • 1 bed • 1 bath • 528 ft²


















































