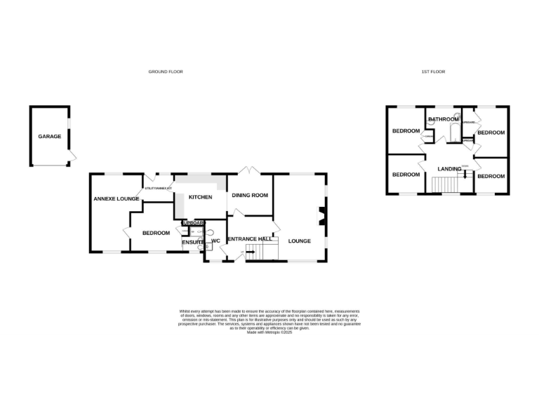
Versatile layout with annex and large gardens for multi-generation living.
Newly fitted Wren kitchen with integrated appliances
One-month-old Valiant gas boiler; efficient, low-maintenance heating
Self-contained annex with bedroom, lounge and en suite
Large corner plot with wrap-around lawn and paved seating area
Garage plus wide shingled driveway for multiple cars
Double glazing installed (post-2002) and filled cavity walls
Above-average council tax — higher running costs to budget for
Mid-1970s construction; scope for modernization to change layout
Set on a generous corner plot in the popular village of Blofield, this spacious four-bedroom detached home is arranged for flexible family living. The ground floor flows from a newly fitted Wren kitchen into a dining room, with a large lounge and a separate annex providing a self-contained bedroom, living area and en suite — ideal for multi-generational living or guest accommodation.
The house has been recently updated: a new Valiant boiler, modern kitchen units and double glazing installed after 2002 reduce short-term maintenance. A wrap-around garden, garage and large shingled driveway give space for parking, storage and outdoor entertaining.
Practical considerations include its mid-1970s construction and an above-average council tax band, which buyers should factor into running costs. The property is presented in good decorative order throughout, but buyers seeking a newly built specification or open-plan contemporary layouts may want to adapt internal spaces.
Located in a very low-crime, affluent village with fast broadband, excellent mobile signal and good local schools, this home suits established families wanting roomy accommodation and potential to personalise the layout over time.
5 bedroom detached house for sale in Hunters Close, Blofield, Norwich, NR13 — £440,000 • 5 bed • 2 bath • 1488 ft²
4 bedroom detached house for sale in Yarmouth Road, Blofield, NR13 — £500,000 • 4 bed • 2 bath • 1313 ft²
4 bedroom detached house for sale in Newstead Gardens, Blofield, NR13 — £625,000 • 4 bed • 2 bath • 1625 ft²
5 bedroom detached house for sale in Shreeve Road, Blofield, NR13 — £475,000 • 5 bed • 3 bath • 1798 ft²
7 bedroom detached house for sale in Garden Road, Blofield, NR13 — £1,250,000 • 7 bed • 5 bath • 4392 ft²
4 bedroom detached house for sale in Hunters Close, Blofield, NR13 — £340,000 • 4 bed • 1 bath • 1109 ft²






























































































































































































































