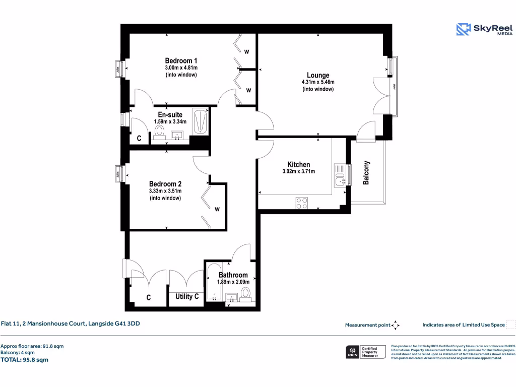
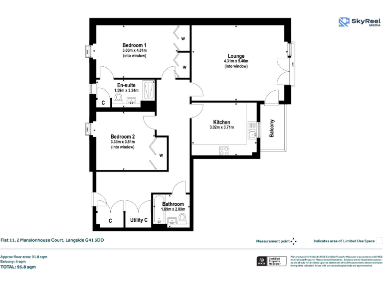
Two-bedroom balcony flat with lift access and allocated parking near Shawlands.
Larger-style two-bedroom flat, approximately 988 sq ft
Private balcony plus Juliet balcony from lounge
Master bedroom with tiled en-suite and built-in wardrobes
Allocated off-street parking and locked bike store
Lift access, secure entry and well-kept communal gardens
High-quality fitted kitchen, integrated appliances and utility cupboard
Freehold tenure and EPC rating B
Council Tax Band E and wider area classified as deprived
This generous two-bedroom flat in Mansionhouse Court offers low-maintenance, retirement-friendly living with modern finishes and practical conveniences. The layout is spacious for a flat of its type, featuring a large L-shaped hallway, generous lounge opening to a private balcony, fitted kitchen with integrated appliances, and two double bedrooms with built-in wardrobes. Bedroom one benefits from a tiled en-suite; the main bathroom has a shower-over-bath and heated towel rails.
Residents benefit from lift access, secure entry, allocated off-street parking, a locked bike store and well-kept communal gardens—features that suit downsizers wanting convenience and comfort. The building has double glazing, gas central heating and quality floor coverings throughout. Broadband speeds and mobile signal are reported as excellent, supporting home connectivity.
Practical considerations: the property is in Council Tax Band E, which is above average for the area. The wider area classification is marked as deprived, which may influence local services and perceptions despite the immediate neighbourhood’s calm, convenient feel. The flat is freehold and presented in a modern neutral decor, ready for immediate occupation with scope to personalise.
For anyone looking to downsize without losing space or amenity, this flat combines accessibility, secure parking and contemporary fittings in a well-maintained development close to Shawlands, Queen’s Park and public transport links.
2 bedroom apartment for sale in St Helens Gardens, Langside, Glasgow, G41 — £235,000 • 2 bed • 2 bath • 942 ft²
2 bedroom flat for sale in 25 Trefoil Avenue, Flat 5/2, Shawlands Glasgow, G41 3PB, G41 — £179,000 • 2 bed • 2 bath • 797 ft²
2 bedroom apartment for sale in Barrland Street, Glasgow, G41 — £150,000 • 2 bed • 2 bath • 764 ft²
2 bedroom flat for sale in 90 Barrland Street, Flat 2/3, Pollokshields, Glasgow, G41 1RJ, G41 — £160,000 • 2 bed • 2 bath • 785 ft²
2 bedroom ground floor flat for sale in Plot 1 Mansionhouse Road Development by Westpoint Homes, G41 — £449,000 • 2 bed • 2 bath • 946 ft²
2 bedroom flat for sale in Flat 5/1, 29 Barrland Street, Glasgow, G41 — £159,000 • 2 bed • 2 bath • 798 ft²


































































































































