Charming Tudor‑style cottage with scope to improve, strong commuter links and no onward chain.
Detached period cottage with Tudor Revival features and wood-burning stove
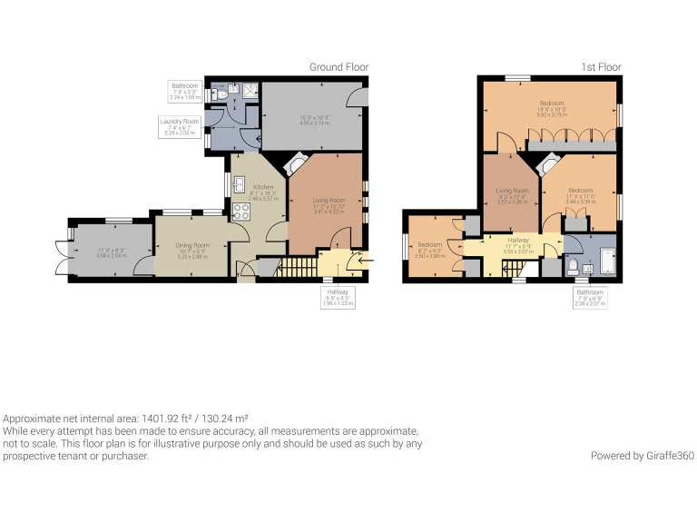
Flexible accommodation across two storeys, approx. 1,401–1,402 sq ft
Potential to extend or enhance subject to planning permission
Garage and enclosed garden; plot is small
Excellent transport links: M4 J12, Aldermaston and Theale stations nearby
Solid brick walls (pre-1900) likely uninsulated; energy upgrades advised
Electric storage heaters; heating and services may require modernisation
No onward chain — available for a relatively quick purchase
Set back in peaceful Ufton Nervet, Rectory Cottage is a detached character home offering over 1,400 sq ft of versatile living space. Period features including arched windows, exposed brick and a wood-burning stove create immediate charm, while a bright sunroom/music room adds a modern, light-filled reception. The property is offered with no onward chain, making it suitable for a prompt move.
The house sits on a small plot with an enclosed garden and garage. Good local schools and excellent transport links — M4 Junction 12 and nearby Aldermaston and Theale stations — suit commuters and families. There is clear potential to improve or extend subject to planning permission, so buyers seeking to add value can adapt the layout to modern standards.
Buyers should note this is an older solid-wall property (pre-1900) with double glazing fitted before 2002 and electric storage heating. The walls are likely uninsulated, and the heating source and some services may need upgrading to improve efficiency and running costs. Council tax sits in Band E, above average for the area.
Overall this cottage will appeal to families and buyers looking for a character home in a quiet, affluent rural setting who are prepared to invest in energy and cosmetic improvements or pursue modest extension plans (subject to planning). Its combination of charm, location and scope for enhancement makes it a practical long-term home or project with strong commuter links.
3 bedroom house for sale in Reading Road, Padworth Common, Reading, Berkshire, RG7 — £500,000 • 3 bed • 1 bath • 890 ft²
4 bedroom detached house for sale in Woodlands Avenue, Burghfield Common, Reading, Berkshire, RG7 — £650,000 • 4 bed • 2 bath • 1430 ft²
3 bedroom end of terrace house for sale in Round Oak Cottages, Reading Road, Padworth Common, Reading, RG7 — £525,000 • 3 bed • 1 bath • 770 ft²
3 bedroom semi-detached house for sale in Mead Close, Peasemore, Newbury, RG20 7JE, RG20 — £450,000 • 3 bed • 3 bath • 1034 ft²
3 bedroom cottage for sale in Ruscombe Lane, Ruscombe, Reading, RG10 — £860,000 • 3 bed • 2 bath • 1496 ft²
3 bedroom end of terrace house for sale in Benson Holme, Reading, RG7 — £400,000 • 3 bed • 1 bath • 821 ft²






































































