**Standout Features:**
- **Spacious Top Floor Duplex Apartment**
- **Unique Period Features:** Exposed brick walls, vaulted ceilings, and original wooden flooring
- **Prime Central Location:** Close proximity to Macclesfield town center
- **Modern Comforts:** Double glazing and newly installed electric heaters
- **Convenient Parking:** Off-street parking included
- **Investment Potential:** Grade II listed property with charm and character
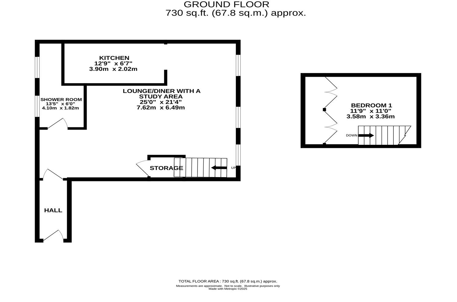
This stunning one-bedroom top-floor apartment, nestled within a charming Grade II listed mill, offers a blend of historical character and modern amenities. With an impressive open-plan layout, the apartment features exquisite exposed brick walls, vaulted ceilings, and beautiful original wooden floors that evoke a rustic yet stylish ambiance. The sizable lounge and dining area is bathed in natural light and seamlessly connects to a well-equipped kitchen.
Ascending the staircase, discover the spacious bedroom with delightful under-eave storage and a cozy mezzanine area that overlooks the main living space. The contemporary shower room is recently upgraded, featuring a stylish walk-in shower and elegant finishes.
Although nestled in a vibrant community atmosphere, potential buyers should note the average crime rate in the area and the moderate broadband speeds, which may be a consideration for some. Additionally, the council tax remains budget-friendly, enhancing the property’s allure for first-time buyers or investors seeking a unique investment in Macclesfield. Don’t miss this opportunity to call this beautiful and character-filled apartment home!
1 bedroom flat for sale in Mill Road, Macclesfield, SK11 — £125,000 • 1 bed • 1 bath • 539 ft²
2 bedroom flat for sale in Drummers Keep, Barracks Square, SK11 8HH, SK11 — £210,000 • 2 bed • 2 bath • 684 ft²
1 bedroom apartment for sale in Athey Street, Macclesfield, Cheshire, SK11 — £140,000 • 1 bed • 1 bath • 968 ft²
1 bedroom flat for sale in Mill Road, Macclesfield, Cheshire, SK11 — £70,000 • 1 bed • 1 bath • 610 ft²
1 bedroom flat for sale in Stamford Court, Stamford Road, Macclesfield, SK11 — £70,000 • 1 bed • 1 bath • 372 ft²
2 bedroom apartment for sale in Union Road, Macclesfield, Cheshire, SK11 — £139,000 • 2 bed • 1 bath • 491 ft²














































