Extended flint-fronted cottage with garden, parking and multigenerational layout.
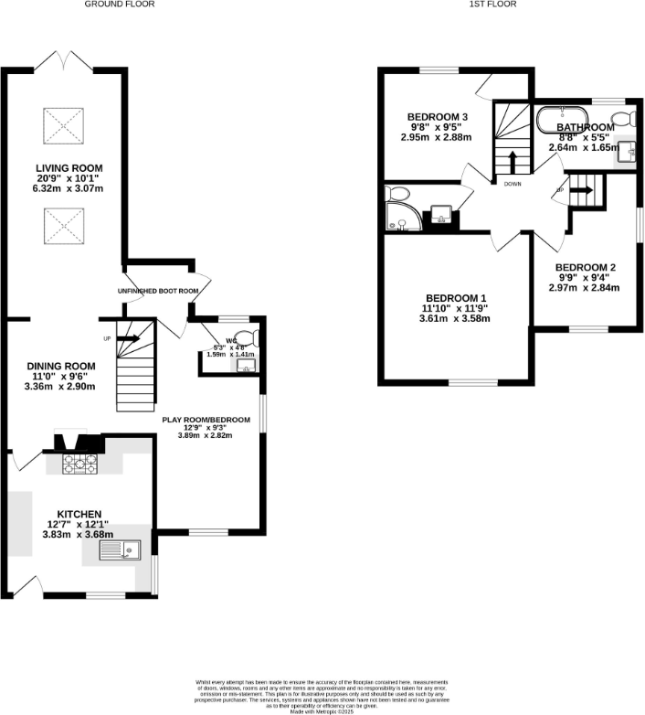
3 bedrooms plus ground-floor reception or fourth bedroom option
Stylish refitted kitchen with island and range-cooker space
Extended living room with rooflights and French doors to garden
Separate shower room requires refurbishment—repairs needed
Unfinished boot/utility area offers conversion potential
Generous enclosed rear garden, patio and timber summerhouse
Off-road parking for two cars on gravel driveway
Oil-fired heating (private supply) — consider running costs
This extended flint-fronted semi-detached cottage in Belchamp Walter offers a flexible, family-friendly layout across approximately 975 sq ft. The stylishly refitted kitchen with central island and space for a range cooker forms a practical hub, while an extended living room with rooflights and French doors provides bright, adaptable living space opening onto the garden. Off-street parking for two cars and a generous rear garden with patio and summerhouse add outdoor appeal.
Accommodation suits multigenerational or growing families, with a ground-floor reception/bedroom option, three first-floor bedrooms and usable loft space. Built-in storage is good and there’s scope to finish the boot/utility area to add further functionality. The separate shower room currently requires refurbishment; the family bathroom retains period character with a roll-top bath.
Practical points are straightforward: the house is freehold, council tax is described as affordable and broadband speeds are fast. Heating is by oil-fired boiler and radiators (private supply), which should be noted for running costs and future servicing. The property sits in a quiet rural hamlet with easy road access to Sudbury and Halstead and local good primary and secondary schooling nearby.
3 bedroom semi-detached house for sale in Rodbridge Hill, Long Melford, CO10 — £559,995 • 3 bed • 1 bath • 1647 ft²
3 bedroom semi-detached house for sale in The Street, Stoke By Clare, Suffolk , CO10 — £450,000 • 3 bed • 2 bath • 1218 ft²
3 bedroom semi-detached house for sale in Steeplechase, Hundon, Sudbury, CO10 8EN, CO10 — £475,000 • 3 bed • 2 bath • 1365 ft²
4 bedroom detached house for sale in The Street, Belchamp Otten, Suffolk, CO10 — £550,000 • 4 bed • 2 bath • 1698 ft²
3 bedroom detached house for sale in Watery Lane, Little Henny, CO10 — £695,000 • 3 bed • 2 bath • 2300 ft²
3 bedroom detached house for sale in Hall Green, Little Yeldham, Halstead, CO9 — £650,000 • 3 bed • 1 bath • 811 ft²






















































































