Spacious extended family house with long private garden in village heart.
- Four good-sized bedrooms, including large top-floor bedroom with ensuite
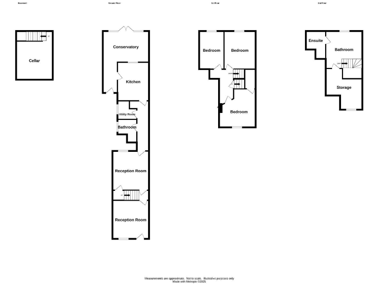
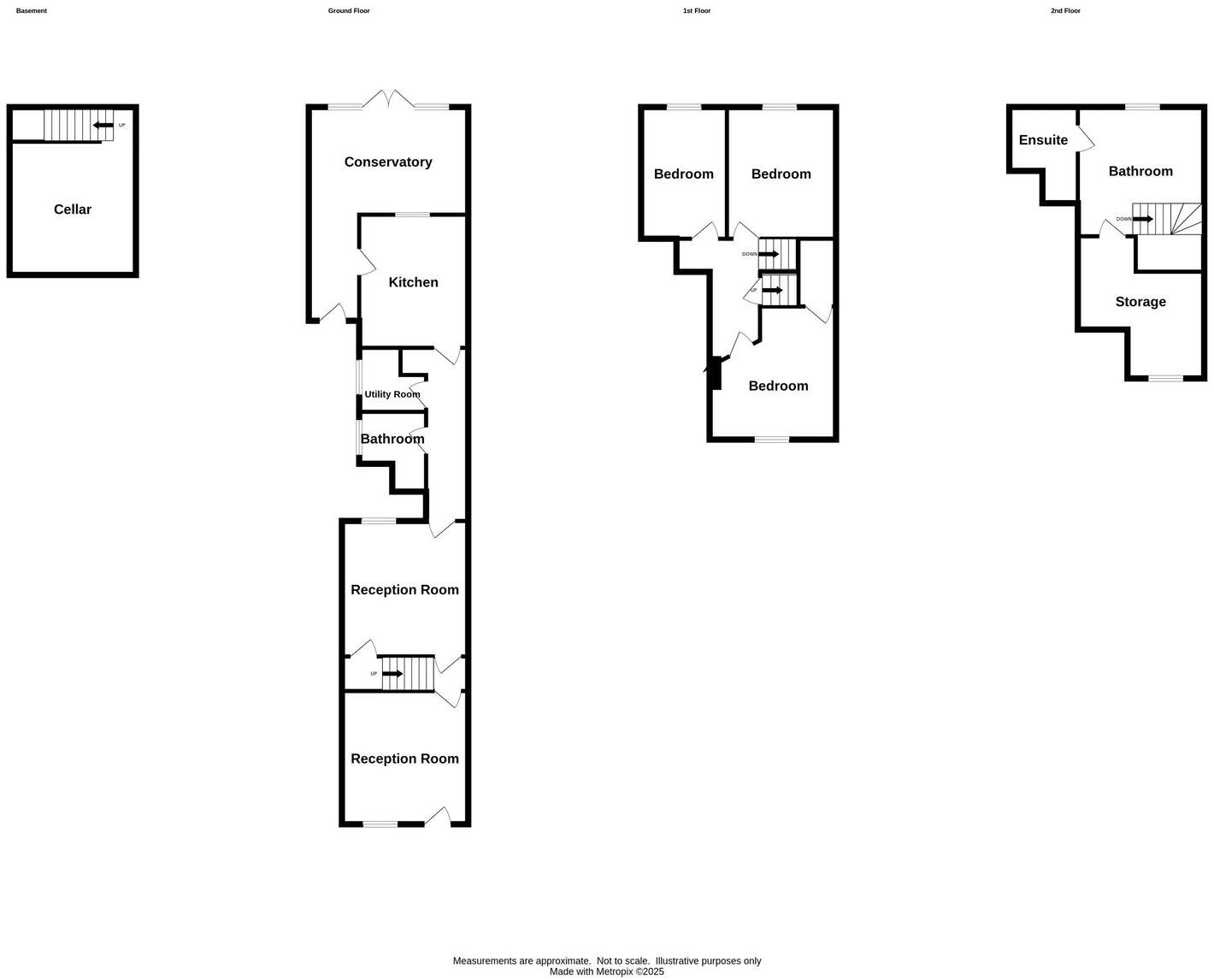
- Substantially extended three-storey layout with cellar and utility room
- Long established private rear garden and conservatory/garden room
- Central village location, close to shops, pubs and good schools
- EPC rating D (mid-60s); scope for energy-efficiency improvements
- Solid brick walls (likely no cavity insulation) — potential retrofit needed
- Conventional finishes; some cosmetic updating may be required
- Council Tax Band B and mains gas central heating via boiler
This substantial period semi-detached house offers generous family accommodation over three floors, including four good-sized bedrooms and a large top-floor principal bedroom with ensuite and walk-in wardrobe. The property benefits from a long established, private rear garden, a conservatory/garden room, cellar and a useful utility room — practical spaces that support busy family life.
Located on Broad Street in the heart of Kingswinford village, the home is within easy walking distance of shops, pubs and highly regarded primary and secondary schools. The house retains appealing period character such as high ceilings, sash-style bay windows and fireplaces, while recent extensions create extra living space ideal for a growing family.
Practical points to note: the home currently has an EPC rating of D (mid-60s) and is constructed with solid brick walls (insulation assumed absent), so there is scope and likely benefit from energy-efficiency improvement work. Some finishes are conventional rather than contemporary, so buyers seeking a fully modern interior should allow for cosmetic updating or renovation to personalise the layout and improve thermal performance.
Overall this is a well-proportioned family home in a central village location that combines period charm with substantial extended accommodation and a long rear garden. It will particularly suit families who want space and character with clear opportunities to improve energy efficiency and update interiors over time.
3 bedroom semi-detached house for sale in KINGSWINFORD, Cross Street, DY6 — £340,000 • 3 bed • 1 bath • 983 ft²
4 bedroom detached house for sale in Mount Pleasant , Kingswinford, DY6 9SN, DY6 — £489,950 • 4 bed • 2 bath • 1373 ft²
4 bedroom detached house for sale in Summercourt Square, Kingswinford, DY6 9QJ, DY6 — £700,000 • 4 bed • 2 bath • 2731 ft²
4 bedroom detached house for sale in Stream Road, Kingswinford, DY6 9NT, DY6 — £779,000 • 4 bed • 2 bath • 1486 ft²
2 bedroom terraced house for sale in KINGSWINFORD, Queen Street, DY6 — £200,000 • 2 bed • 1 bath • 873 ft²
3 bedroom semi-detached house for sale in Fairview Crescent, Kingswinford, DY6 8LF, DY6 — £290,000 • 3 bed • 2 bath • 1119 ft²


























































































