Large garden and driveway ideal for family living and flexible use.
Extended 1930s semi-detached layout with bay-fronted living room
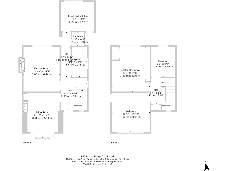
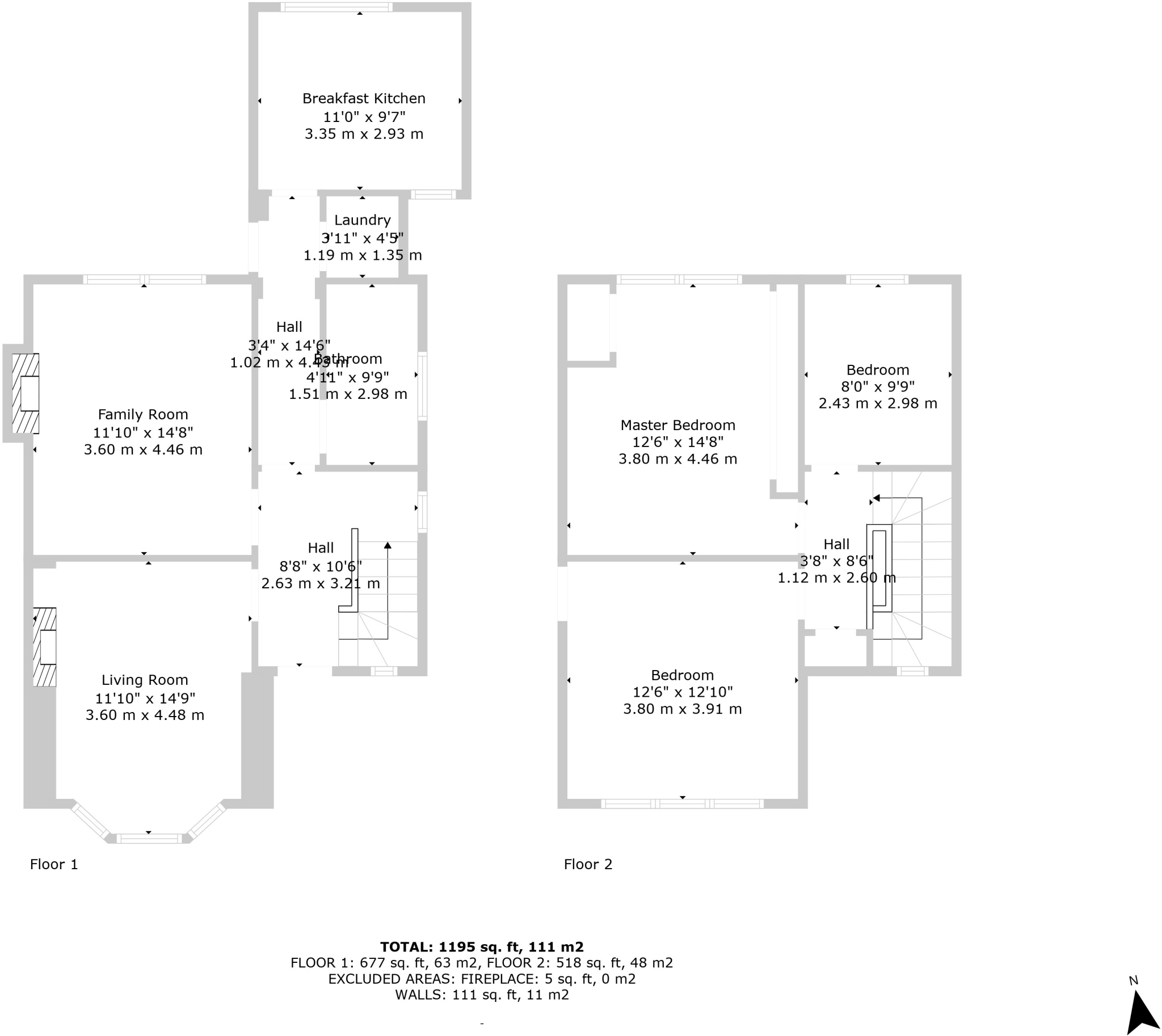
Well-proportioned and extended, this 1930s semi-detached villa offers a practical family layout and substantial outdoor space. The bright bay-fronted living room and generous extended dining/family room give flexible living for children and entertaining. A modern kitchen and fully tiled family bathroom reduce immediate refurbishment needs.
Outdoors, the driveway and large, private rear garden are standout features — a rare find for the area and ideal for family play, gardening or future extension (subject to planning). Gas central heating, double glazing, fast broadband and excellent mobile signal support everyday comfort and home working.
Buyers should note the property has a single family bathroom and sits within a locality classified as very deprived/challenged — local services, schools and amenities vary in quality. The house is an average-sized home (about 1,195 sq ft) with traditional features and some dated elements; buyers seeking a fully modernised finish may wish to allow for decorative updating over time.
Overall this freehold semi-detached villa will suit families wanting generous outside space and flexible living close to local schools, green space and transport links, while accepting some local area challenges and modest internal updating where desired.
3 bedroom semi-detached house for sale in 33 Darnley Crescent, Bishopbriggs, G64 — £325,000 • 3 bed • 2 bath • 1251 ft²
2 bedroom semi-detached house for sale in Cander Rigg, Glasgow, G64 — £249,995 • 2 bed • 2 bath
2 bedroom semi-detached house for sale in 14 Bardrill Drive, Bishopbriggs, , Glasgow, G64 — £230,000 • 2 bed • 2 bath • 971 ft²
3 bedroom semi-detached house for sale in Colston Road, Bishopbriggs, Glasgow, G64 2BD, G64 — £334,999 • 3 bed • 1 bath • 1471 ft²
3 bedroom semi-detached house for sale in 26 Tweedsmuir, Bishopbriggs, Glasgow, G64 — £300,000 • 3 bed • 1 bath • 1006 ft²
3 bedroom semi-detached house for sale in Rannoch Avenue, Bishopbriggs, G64 — £299,000 • 3 bed • 2 bath • 1144 ft²


























































































































