PH23 3ND - Land for sale in Duthil, Carrbridge, PH23

View on Property Piper

Land for sale in Duthil, Carrbridge, PH23

Summary - BALLINLAGGAN, CARRBRIDGE PH23 3ND

1 bed 1 bath Land

**Key Features:**
- 0.55-acre plot with approved planning for steading conversion until September 2025.
- Exceptional panoramic views of the Cairngorms National Park.
- Borders a peaceful local nature reserve, enhancing privacy and tranquility.
- Located in Duthil, near the historic village of Carrbridge, with access to local amenities.
- Current property condition includes a derelict farmhouse and stone buildings in need of full renovation.
- Access and services available nearby, allowing for a bespoke development approach.

**Summary Description:**
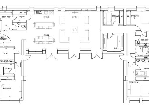
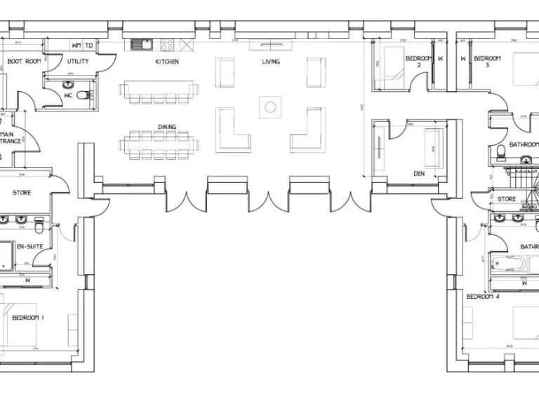
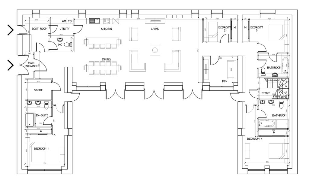
Explore a rare opportunity to create your dream home or second residence on a picturesque 0.55-acre plot at Ballinlaggan Steading. This location promises breathtaking, unobstructed views of the Cairngorms and direct access to a local nature reserve, perfect for those seeking a tranquil escape in the heart of the Highlands. The property comes with approved planning for a steading conversion, providing you with a solid foundation to begin your bespoke renovation project. Embrace the charm of Duthil, whilst enjoying proximity to the vibrant amenities of Carrbridge, including shops, cafes, and outdoor activities. While the existing buildings are in derelict condition and require significant renovation, this offers an exciting chance for creative architectural expression. Whether you're a first-time buyer or an investor looking for a unique opportunity, seize this moment to explore a peaceful Highland lifestyle amidst stunning natural beauty. Act quickly; opportunities like this are seldom available!

Property Details

Brochure Descriptions

Image Descriptions

Textual Property Features

Detected Visual Features

Nearest Bars And Restaurants

,,,,}

Nearest General Shops

,,}

Nearest Grocery shops

,,}

Nearest Supermarkets

,,}

Nearest Religious buildings

,,}

Nearest Medical buildings

,,,}

Nearest Leisure Facilities

,,,,}

Nearest Tourist attractions

,,}

Nearest Train stations

,,,,}

Nearest Bus stations and stops

,,,,}

Nearest Hotels

,,}

Tags

Local Market Stats

Similar Properties

Meta

High Res Images

Compatible Images

Low res Images

Thumbnails

Raw Images