Two-bed auction lot with immediate rental income and long lease — investor opportunity.
Tenant in situ generating £520 pcm rental income
Long lease remaining (approx 961 years)
Sold at auction — purchase subject to auction terms
Approx 591 sq ft; small overall footprint
EPC Grade D; mains-gas boiler and radiators
Constructed 1900–1929; solid brick, likely no wall insulation
Very high local crime and very deprived area classification
Council Tax Band A; low running council tax costs
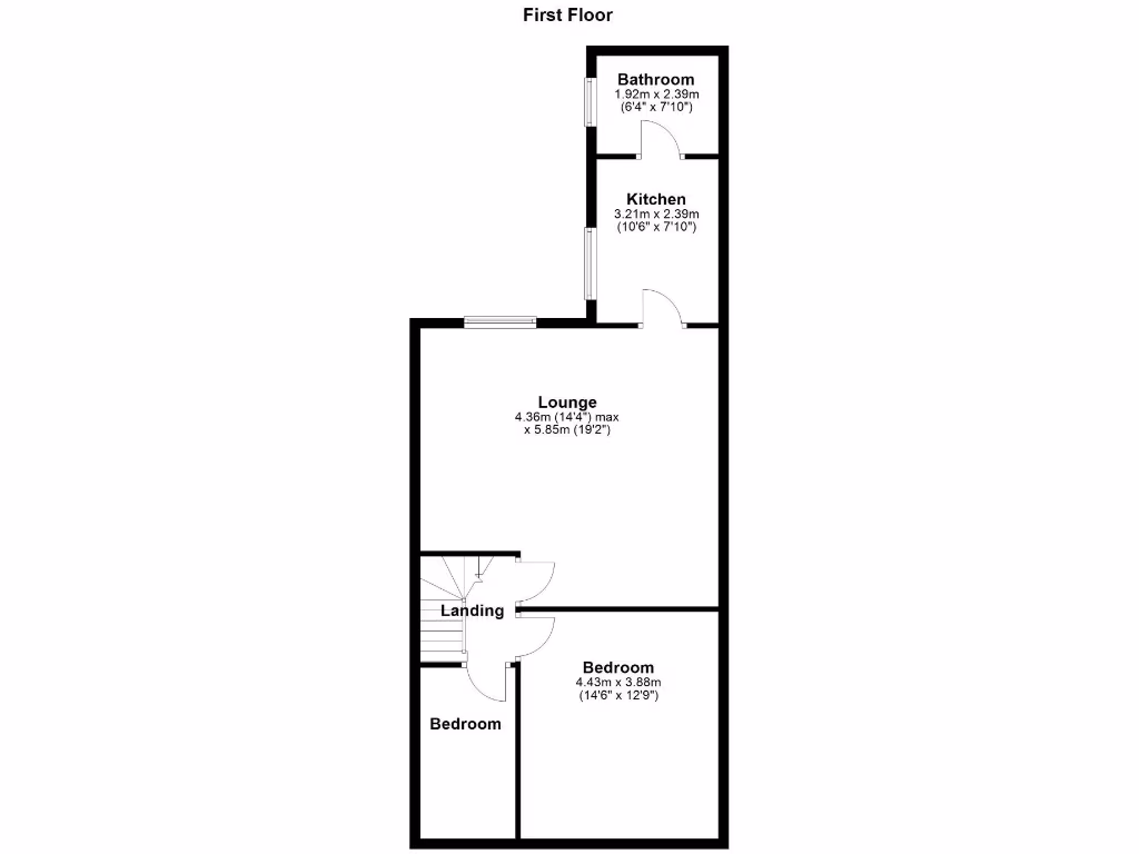
This two-bedroom first-floor flat on Brussels Road is offered at auction with a long lease and a tenant in situ, providing immediate rental income. The property sits close to Wallsend Metro Station and local shops, making it straightforward to let in this busy urban location.
Internally the layout includes a spacious lounge with a feature fireplace, fitted kitchen, two bedrooms and a single bathroom. Constructed circa 1900–1929 with solid brick walls and high ceilings, the flat has character but limited built-in insulation; double glazing is present though installation date is unknown. Heating is by mains-gas boiler and radiators; the EPC is grade D.
This is primarily an investor proposition: current rent is £520 pcm (£6,240 pa) and the sale price is £45,000, giving a strong gross income profile. Important buyer notes: the property is in a very deprived area with very high local crime rates, will be sold at auction, and is leasehold (long lease remaining).
Practical considerations include a relatively small overall size (approx 591 sq ft), a single bathroom, and likely need for modernisation or insulation upgrades to improve comfort and energy performance. Services, fixtures and appliances have not been tested and purchasers should satisfy themselves on condition and compliance before bidding.
2 bedroom flat for sale in 26 Brussels Road, Wallsend NE28 6SB, NE28 — £45,000 • 2 bed • 1 bath • 679 ft²
3 bedroom flat for sale in Barrasford Street, Wallsend, Tyne and Wear, NE28 0JZ, NE28 — £45,000 • 3 bed • 1 bath • 937 ft²
2 bedroom ground floor flat for sale in Barrasford Street, Wallsend, Tyne and Wear, NE28 0JZ, NE28 — £45,000 • 2 bed • 1 bath
2 bedroom flat for sale in Strathmore Crescent, Benwell, Newcastle upon Tyne, Tyne and Wear, NE4 8UB, NE4 — £45,000 • 2 bed • 1 bath • 549 ft²
2 bedroom flat for sale in Welbeck Road, Walker, Newcastle upon Tyne, Tyne and Wear, NE6 2QX, NE6 — £60,000 • 2 bed • 1 bath • 703 ft²
3 bedroom flat for sale in Tynemouth Road, Howdon, Wallsend, Tyne and Wear, NE28 0LF, NE28 — £60,000 • 3 bed • 1 bath • 1088 ft²






