Five-bedroom detached house with large garden, double garage and station nearby.
Five double bedrooms including two en-suites and family bathroom
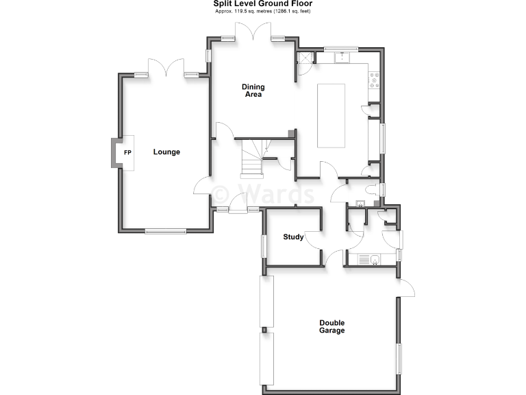
Large kitchen/dining area ideal for entertaining and family life
Ground-floor study suitable for a home office
Sunny, large rear garden safe for children and outdoor dining
Driveway plus double garage; good off-street parking
Built 2003–2006 with double glazing and gas central heating
Walking distance to East Malling station for commuters
Council tax noted as quite expensive; verify all details
This five-bedroom detached house in a quiet cul-de-sac offers generous, well-planned living for a growing family. The ground floor features a large lounge, a striking kitchen/dining area for entertaining, a useful study for home working and a handy utility and cloakroom.
Bedrooms are arranged over the first floor with a principal bedroom and en-suite, a second bedroom with en-suite shower room and three further bedrooms served by a family bathroom. Room sizes are notably generous, and the house benefits from modern construction (circa 2003–2006) and double glazing.
Outside, a large sunny rear garden provides a safe play space and alfresco dining area while a driveway and double garage deliver easy parking. East Malling station is within walking distance for commuters, and several well-rated primary and secondary schools are nearby.
Practical points to note: council tax is described as quite expensive and crime levels are average for the area. All particulars should be verified, including fixtures, fittings and tenure. Overall, this is a modern, family-focused home on a substantial plot with strong local amenities and commuting links.
4 bedroom link detached house for sale in Vigor Close, East Malling, Kent, ME19 — £675,000 • 4 bed • 3 bath • 1680 ft²
5 bedroom detached house for sale in The Rocks Road, East Malling, West Malling, Kent, ME19 — £775,000 • 5 bed • 3 bath • 1361 ft²
3 bedroom detached house for sale in Mill Street, East Malling, West Malling, Kent, ME19 — £700,000 • 3 bed • 3 bath • 417 ft²
5 bedroom detached house for sale in Epsom Close, West Malling, ME19 — £600,000 • 5 bed • 3 bath • 1729 ft²
4 bedroom detached house for sale in Cottenham Close, East Malling, West Malling, ME19 — £595,000 • 4 bed • 2 bath • 1414 ft²
4 bedroom detached house for sale in Rocks Close, East Malling, West Malling, ME19 — £700,000 • 4 bed • 2 bath • 1625 ft²


































































