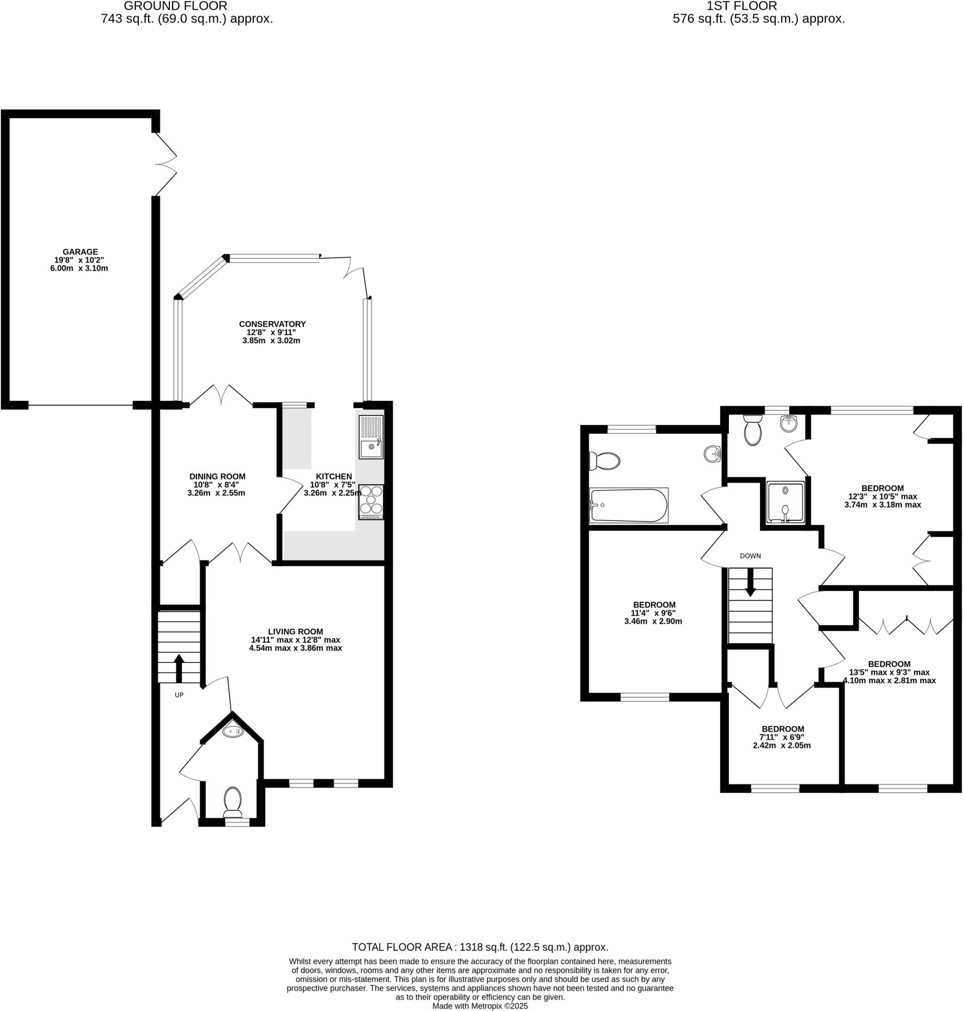
**Standout Features:**
- Generous link-detached family home
- Four spacious bedrooms with an en suite in the main bedroom
- Two inviting reception rooms and a bright conservatory
- Enclosed rear garden, garage, and driveway parking
- Located in a popular residential area near village center and mainline station
- Above-average broadband speeds and excellent mobile signal
**Potential Downsides:**
- Average-sized total square footage of 1318 sq ft
- Crime rate slightly above average
- Council tax rated above average
This charming link-detached family home offers an excellent opportunity for family living in a sought-after suburban neighborhood. With four well-sized bedrooms, including a main bedroom featuring an en suite, and two reception rooms that provide a flexible living space, the property promises comfort and practicality. The large conservatory invites abundant natural light, perfect for family gatherings or a serene morning coffee.
The enclosed rear garden provides a secure space for outdoor activities, while the garage and driveway ensure convenient parking. Residing in a friendly community, the house is just a short stroll from the village center and the mainline station, allowing for easy commuting. Education options are top-notch with several outstanding primary schools nearby, making it an ideal location for families.
With a competitive price of £500,000, this home is poised to attract interest quickly. Don't miss the chance to own a well-located family residence that balances space, comfort, and community. Act fast to secure this desirable property that has the potential for future enhancements and personal touches!
4 bedroom detached house for sale in Hop Garden Road, Hook, Hampshire, RG27 — £695,000 • 4 bed • 2 bath • 1730 ft²
4 bedroom detached house for sale in Wash Brook, Hook, Hampshire, RG27 — £600,000 • 4 bed • 2 bath • 1543 ft²
4 bedroom detached house for sale in Smallfield Drive, Hook, Hampshire, RG27 — £550,000 • 4 bed • 2 bath • 1455 ft²
5 bedroom detached house for sale in Garden Close, Hook, Hampshire, RG27 — £825,000 • 5 bed • 2 bath • 2045 ft²
4 bedroom detached house for sale in Mead Hatchgate, Hook, Hampshire, RG27 — £700,000 • 4 bed • 2 bath • 1646 ft²
5 bedroom detached house for sale in Bow Field, Hook, RG27 — £750,000 • 5 bed • 3 bath • 1999 ft²














































