Large plot, double garage and renovation potential in the heart of Downend.
No onward chain — freehold detached bungalow
Set on a sizeable plot in the heart of Downend, this 1930s detached dormer bungalow offers a rare no-onward-chain opportunity for a family or buyer seeking renovation potential. The house retains period character — leaded bay windows and a pitched roof — and sits within easy walking distance of the High Street, local schools and transport links including the Bristol–Bath cycle path.
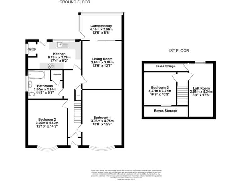
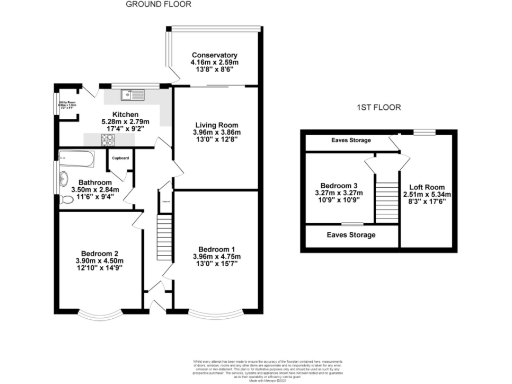
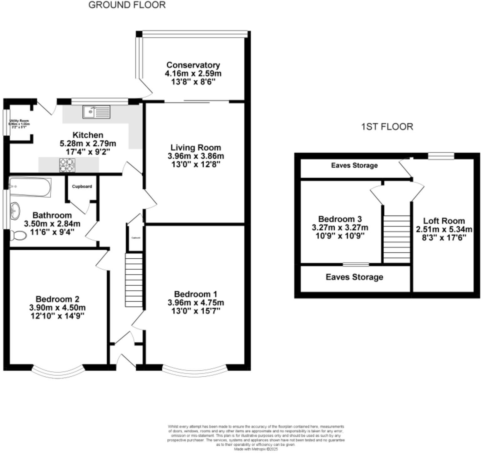
The bungalow provides three double bedrooms (two ground-floor bays and a dormer room), a large living room with conservatory, separate kitchen, and a single family bathroom. Outside, a double garage with workshop, side access, and off-street parking sit alongside a generous rear garden laid mainly to lawn with patio areas — plenty of scope for extension, landscaping or creating separate parking/ancillary space (subject to planning).
Practical considerations: the property needs renovation throughout, and there is only one bathroom for three double bedrooms. EPC is currently TBC and council tax band is above average, so buyers should factor potential energy and running-cost improvements into budgets. The house is offered freehold and chain-free, simplifying a faster purchase for a willing buyer.
This home will appeal to families seeking local schools and amenities, buyers after a project with upside, or investors looking to add value through sympathetic modernisation. Viewings are recommended to appreciate the plot, garage/workshop potential and the layout.
2 bedroom bungalow for sale in Trident Close, Downend, Bristol, BS16 — £395,000 • 2 bed • 1 bath • 679 ft²
3 bedroom detached bungalow for sale in Boscombe Crescent, Downend, BS16 — £450,000 • 3 bed • 1 bath • 1064 ft²
3 bedroom bungalow for sale in Down Road, Portishead, Bristol, BS20 — £515,000 • 3 bed • 2 bath • 1017 ft²
3 bedroom detached bungalow for sale in Badminton Road, Downend, Bristol, BS16 6BX, BS16 — £595,000 • 3 bed • 1 bath • 1892 ft²
3 bedroom bungalow for sale in Charnhill Drive, Mangotsfield, Bristol, Gloucestershire, BS16 — £475,000 • 3 bed • 2 bath • 1332 ft²
3 bedroom semi-detached house for sale in Peache Road, Downend, Bristol, BS16 — £375,000 • 3 bed • 1 bath • 802 ft²






































































































