Contemporary five-bedroom detached house with large private garden and gated driveway.
Five bedrooms, two en-suites and home office option
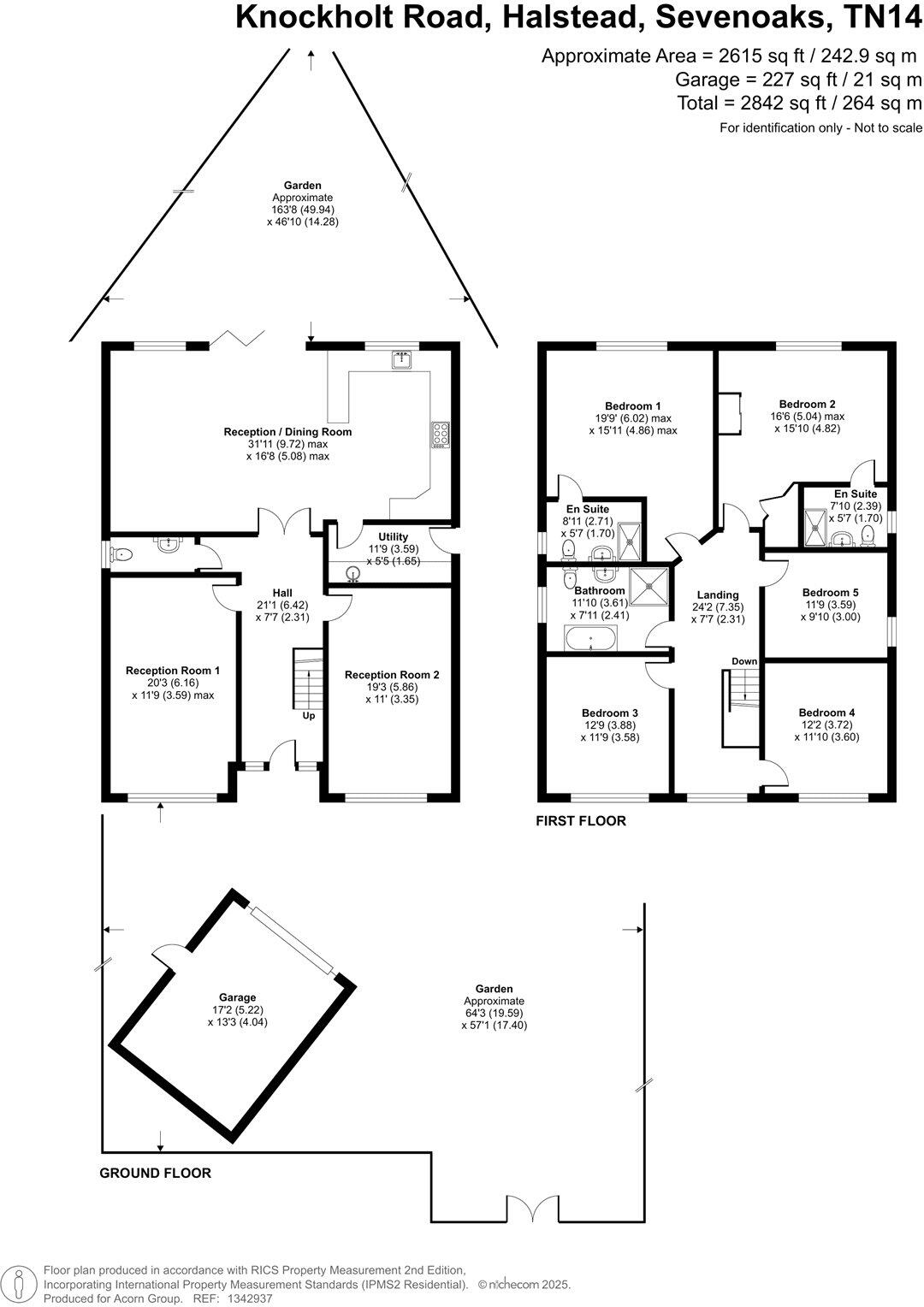
Set behind electronically controlled gates on Knockholt Road, this individually designed five-bedroom detached home delivers over 2,800 sqft of contemporary family living. Built in 2021, the house benefits from modern construction standards, underfloor heating across the ground floor, gas central heating, a vaulted first-floor landing with a curved feature window and energy-efficient fixtures including an EV charging point to the detached garage.
The ground floor offers flexible entertaining space with two reception rooms and a large open-plan kitchen/dining area with matt cabinetry, integrated appliances and a separate utility. Upstairs there are five well-proportioned bedrooms, two en-suites and a family bathroom — one bedroom is currently used as a home office. The property sits on a very large mature plot with a paved rear terrace and approximately 163 ft landscaped garden, plus a gravel driveway providing extensive off-street parking.
This home will appeal to families seeking space, privacy and modern finishes in a semi-rural village setting between Sevenoaks and Orpington. Practical positives include recent construction (2021), freehold tenure, low flood risk and good local schooling options nearby. Note practical limitations: broadband speeds are slow here and council tax is in a high band, which may affect running costs. Overall the house offers substantial living space on a generous plot with scope for personalising internal finishes if required.
5 bedroom detached house for sale in Oakside, Otford lane, Halstead, Sevenoaks, TN14 — £1,600,000 • 5 bed • 4 bath • 3048 ft²
5 bedroom detached house for sale in Watercroft Road, Halstead, TN14 — £1,075,000 • 5 bed • 3 bath • 2208 ft²
5 bedroom semi-detached house for sale in The Meadows, Halstead, TN14 — £925,000 • 5 bed • 3 bath • 1988 ft²
3 bedroom link detached house for sale in Clarks Lane, Halstead, Sevenoaks, Kent, TN14 — £675,000 • 3 bed • 3 bath • 1740 ft²
5 bedroom detached house for sale in Highland Road, Badgers Mount, TN14 — £1,050,000 • 5 bed • 3 bath • 2998 ft²
3 bedroom link detached house for sale in Clarks Lane, Halstead, TN14 — £600,000 • 3 bed • 2 bath • 1655 ft²










































































































































