**Standout Features:**
- Modern semi-detached home built in 2022
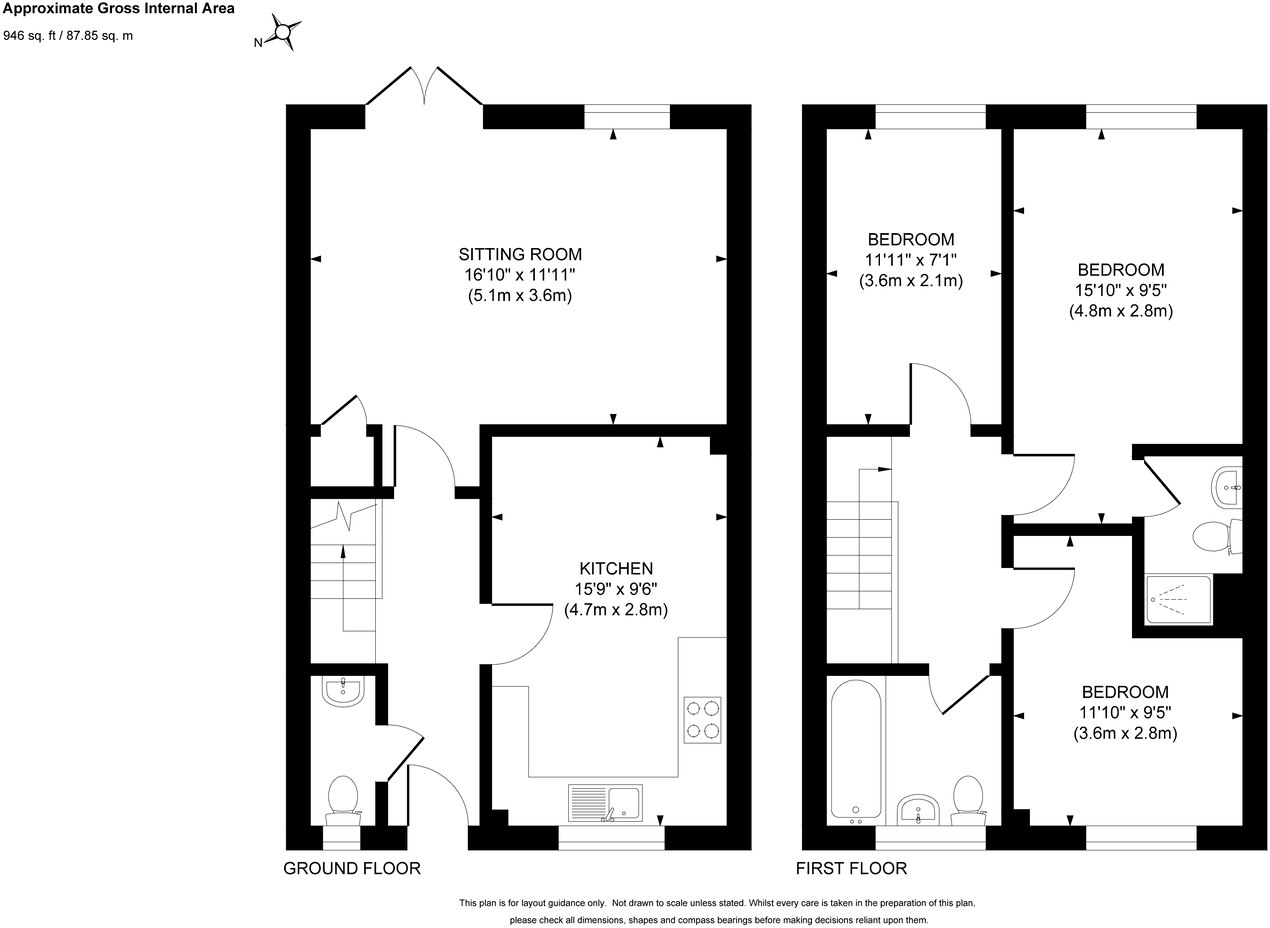
- Three bedrooms and two bathrooms
- New homes warranty valid until 2033
- Bright kitchen/diner with integrated appliances
- Enclosed garden and off-road parking for two (with EV charger)
- Located in a quiet residential development near South Downs National Park
- EPC Rating: B
- Chain-free sale
This modern three-bedroom semi-detached home in Sayers Common offers a perfect blend of comfort and convenience for families or first-time buyers. With a reliable new homes warranty extending to 2033, you can move in with peace of mind. The spacious kitchen/diner is bathed in natural light and is equipped with high-quality integrated appliances, making it an ideal space for family meals or entertaining guests. The cozy sitting room opens directly onto an easy-to-maintain garden, providing a great outdoor relaxation spot.
Upstairs, the main bedroom features its own en-suite shower room, while two additional bedrooms offer flexibility as children's rooms or home offices. Parking is a breeze with space for two vehicles and a fitted EV charger—perfect for electric vehicle owners. The property is situated in a friendly village surrounded by beautiful countryside and within easy reach of local amenities and excellent schools.
While the local area boasts high crime rates and average mobile signal, the accessibility to Brighton and major commuter routes makes this an appealing opportunity that won't last long. Embrace modern living in this welcoming home and enjoy the comforts it has to offer!
2 bedroom semi-detached house for sale in Nightingale Way, Sayers Common, BN6 — £385,000 • 2 bed • 1 bath • 777 ft²
2 bedroom semi-detached house for sale in Nightingale Way, Sayers Common, West Sussex, BN6 — £385,000 • 2 bed • 1 bath • 557 ft²
3 bedroom semi-detached house for sale in Barton Way, Hassocks, BN6 — £450,000 • 3 bed • 2 bath • 969 ft²
3 bedroom semi-detached house for sale in Avenue De Warenne, Hassocks, BN6 — £500,000 • 3 bed • 2 bath • 1211 ft²
2 bedroom semi-detached house for sale in Lenthall Place, Hassocks, BN6 — £375,000 • 2 bed • 2 bath • 797 ft²
2 bedroom semi-detached house for sale in Freeland Close, North Chailey, Lewes, BN8 — £365,000 • 2 bed • 1 bath • 799 ft²






































































