Well-presented three-bedroom property with low-maintenance garden and easy commuter links.
Three-bedroom detached family home with ensuite to master
EPC rating B; freehold tenure
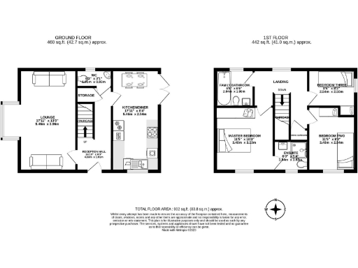
Approx 902 sq ft; average-sized rooms throughout
Landscaped side garden with astro turf and Indian stone patio
Drive provides one off-street parking space; part used for shed
Small plot size — limited outdoor land for extension
Close to several Good-rated primary schools; secondary options vary
Easy access to M6/M61 and Chorley amenities
This well-presented three-bedroom detached home on Mill Lane offers a compact, comfortable layout ideal for a growing family. The living room’s bay window and the open-plan kitchen/diner create bright social spaces, while fitted wardrobes and an ensuite on the master bedroom add practical convenience.
Outside, the side garden is low-maintenance and attractively landscaped with an astro-turf lawn, Indian stone patio and decked shed area — a usable outdoor room for children and family gatherings. The rear drive currently provides one off-street parking space; part of the drive has been used for a shed but can be returned to increase parking if required.
Positioned close to Coppull’s primary schools (all rated Good) and with straightforward road links to Chorley, the M6 and M61, the house suits families who need local amenities and commuter access. The property is freehold, has an EPC rating B and is offered at an accessible price point in a small-town setting.
Buyers should note the plot is modest in size and parking is currently limited to one vehicle unless the vendor’s shed is removed. One nearby secondary school (Southlands High) is rated Requires Improvement; alternatives in the area have Good ratings. Overall, the house is presented ready to move into with sensible scope for small improvements if desired.
3 bedroom detached house for sale in Mill Lane, Coppull, PR7 — £249,999 • 3 bed • 2 bath • 967 ft²
3 bedroom semi-detached house for sale in Chapel Lane, Coppull, Chorley, PR7 — £169,995 • 3 bed • 1 bath • 728 ft²
3 bedroom semi-detached house for sale in Spinners Close, Coppull, PR7 — £229,950 • 3 bed • 2 bath • 973 ft²
4 bedroom semi-detached house for sale in Mavis Drive, Coppull, Chorley, PR7 — £219,995 • 4 bed • 1 bath • 1522 ft²
3 bedroom semi-detached house for sale in Duxbury Gardens, Chorley, PR7 — £219,995 • 3 bed • 2 bath • 787 ft²
3 bedroom detached house for sale in Manor Way, Coppull, PR7 — £299,995 • 3 bed • 1 bath • 900 ft²


















































































































