**Standout Features:**
- Converted school property with unique and stylish design
- Spacious end-of-terrace layout with high ceilings
- Three well-sized bedrooms and two bathrooms
- Modern kitchen with ample storage and separate dining room
- Off-road parking including a garage
- Well-maintained front and rear gardens with outdoor seating
- Convenient cul-de-sac location in central Horbury
- Excellent broadband speeds and mobile signal
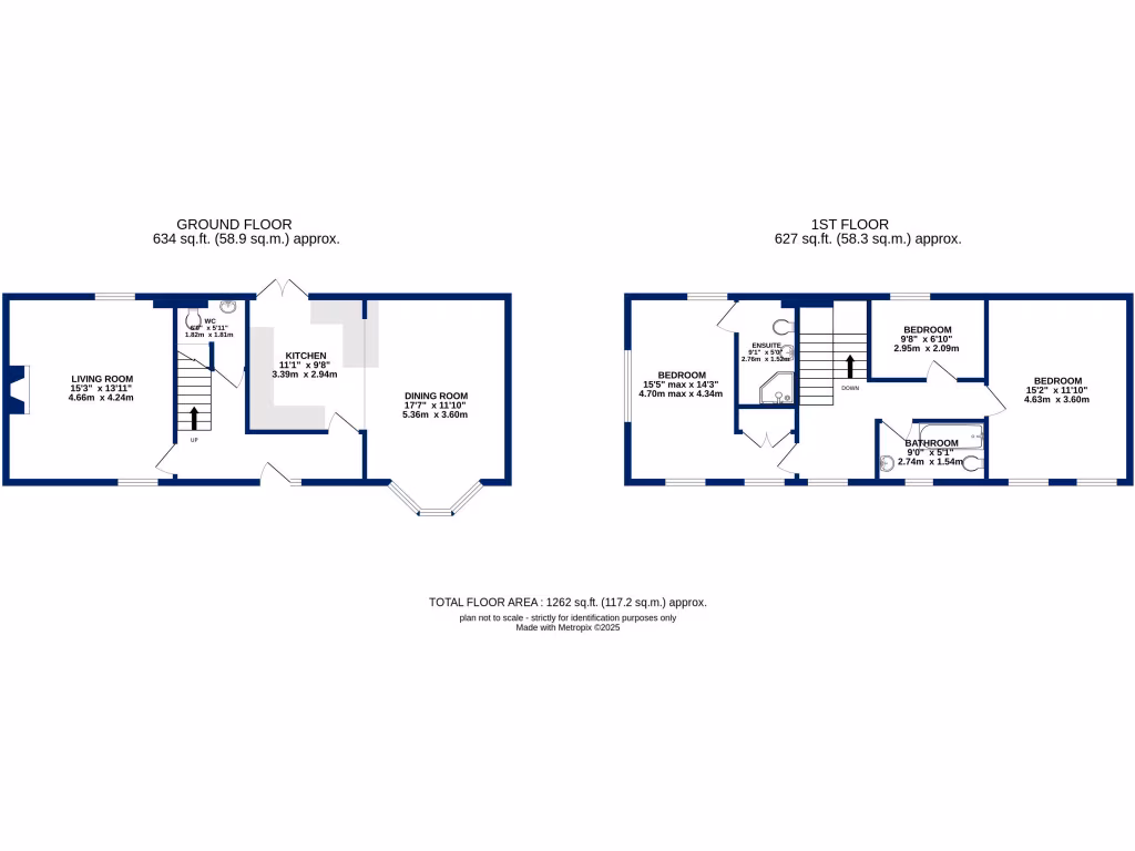
Discover this stunning three-bedroom end-of-terrace home in the desirable cul-de-sac of Horbury, offering a blend of modern decor and charming original features. With high ceilings and large windows throughout, this home feels bright and inviting. The ground floor features a spacious entrance hall leading into a beautifully presented lounge, a well-equipped kitchen with generous worktop space, and a separate dining room perfect for family gatherings. A convenient downstairs WC completes this floor. Upstairs, you'll find three generously sized bedrooms, including a master with en-suite facilities, ready for your personal touch.
Externally, enjoy the privacy of off-road parking via a driveway and garage, with well-kept gardens on both the front and rear. This home is ideally situated to take advantage of local amenities, including schools, cafes, and shops—all within walking distance—along with easy access to bus routes and the M1 motorway for commutes. The property is offered as freehold and is in need of minimal maintenance, making it an exceptional choice for families and first-time buyers looking for a secure and comfortable lifestyle. Early viewing is highly recommended; properties like this do not stay on the market long!
6 bedroom detached house for sale in Manor Court, Horbury, Wakefield, WF4 — £795,000 • 6 bed • 3 bath • 658 ft²
3 bedroom semi-detached house for sale in Chesterton Court, Horbury, Wakefield, West Yorkshire, WF4 — £255,000 • 3 bed • 1 bath • 700 ft²
3 bedroom semi-detached house for sale in Jacobs Court, Horbury, Wakefield, WF4 — £260,000 • 3 bed • 1 bath • 1094 ft²
5 bedroom detached house for sale in Bracken Hill View, Horbury, Wakefield, West Yorkshire, WF4 — £485,000 • 5 bed • 3 bath • 1902 ft²
3 bedroom detached house for sale in Horbury Road, WAKEFIELD, West Yorkshire, WF2 — £375,000 • 3 bed • 2 bath • 1259 ft²
4 bedroom end of terrace house for sale in Quarry Hill, Horbury, WF4 — £190,000 • 4 bed • 2 bath • 1583 ft²


































































































