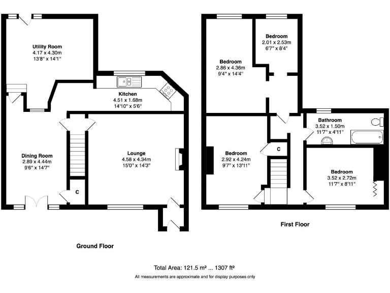
Characterful four-bedroom house with flexible space and commuter links.
Period detached house with exposed beams and fireplace
Four bedrooms but only one bathroom (practical limitation)
Basement, large utility and flexible living areas
Well-kept front and side gardens on a small plot
Freehold tenure; cheap council tax
Fast broadband and excellent mobile signal for commuters
Close to shops, schools and M62 commuter links
Area has high crime rates and very high deprivation scores
This period detached house in Wyke combines original cottage character with practical family living. Exposed beams and a fireplace create a warm lounge; the entrance dining area, large utility and basement add flexible space for a growing household. The property is freehold and benefits from fast broadband and excellent mobile signal, useful for commuting and home working.
Outside there are well-kept front and side gardens with mature shrub borders that provide pleasant outdoor space despite the small plot. The house sits in a village setting with shops, supermarket and local schools within walking distance, and good motorway links (M62) to Halifax, Brighouse, Huddersfield and Leeds.
Important practical points: the home has four bedrooms but only one bathroom, and the overall property footprint is described as small despite its period character. The area is marked by high crime and very high deprivation scores, which may concern some buyers. The layout and basement offer scope for refurbishment or reconfiguration for better family convenience or rental potential.
This property will suit buyers who value character and village amenities and are prepared to invest in updating spaces or accept a single bathroom for four bedrooms. Viewing is advised to fully appreciate the space, potential and location benefits before deciding.
3 bedroom semi-detached house for sale in Elizabeth Street, Wyke, Bradford, BD12 — £210,000 • 3 bed • 2 bath • 686 ft²
4 bedroom detached house for sale in Westfield Lane, Wyke, Bradford, BD12 — £340,000 • 4 bed • 1 bath • 1165 ft²
4 bedroom detached house for sale in Royd Street, Wyke, Bradford, BD12 — £300,000 • 4 bed • 2 bath • 1152 ft²
3 bedroom terraced house for sale in Huddersfield Road, Wyke, Bradford, BD12 — £170,000 • 3 bed • 1 bath • 1001 ft²
2 bedroom semi-detached house for sale in Oakenshaw Court, Wyke, BD12 9JE, BD12 — £179,950 • 2 bed • 1 bath • 784 ft²
4 bedroom detached house for sale in Green Lane, Wyke, Bradford, BD12 — £475,000 • 4 bed • 4 bath • 1937 ft²


















































































































