Elevated west-facing sunsets and planning for a four-bedroom home near sandy beach.
Full planning permission granted (Ref: 1222/23/HHO) for a four-bedroom house
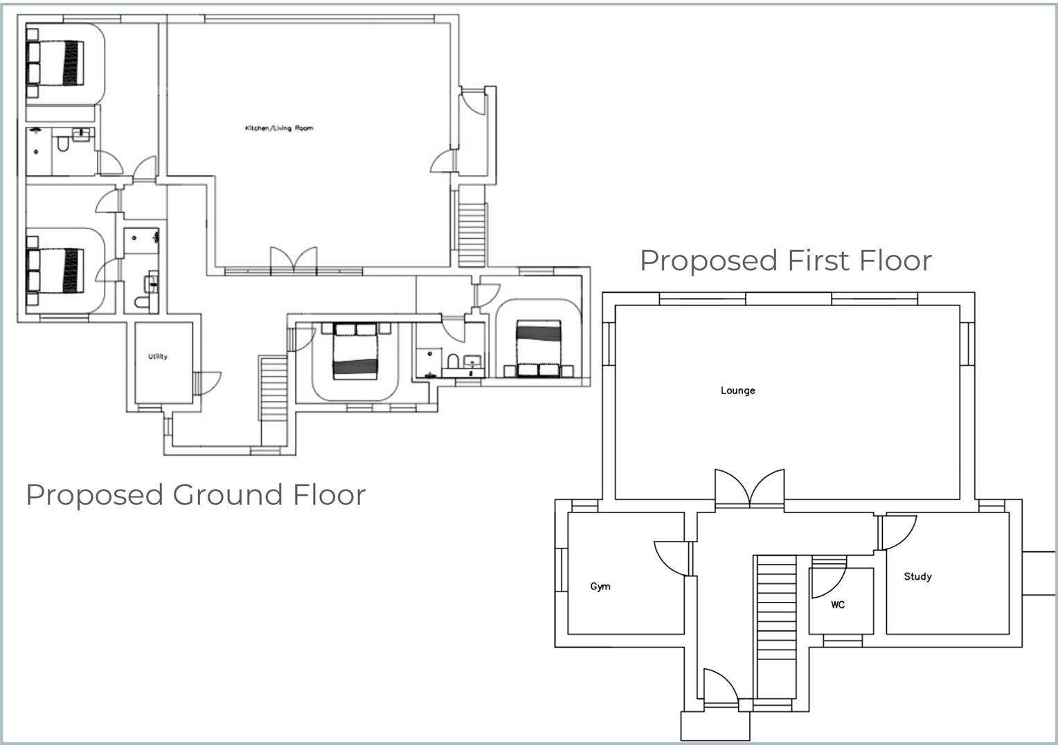
A rare elevated seaside plot in Bigbury-on-Sea with full planning permission (Ref: 1222/23/HHO) to create a four-bedroom detached home. The approved design capitalises on uninterrupted westerly sea views, an open-plan living area, two en-suites, study, gym, detached garage and three off-road parking spaces. The site sits on a generous plot of around 770 sq m with gently sloping gardens and easy walking access to the beach.
This is a project property: the existing dwelling is neglected and described as a fixer-upper, and all services are currently disconnected. Buyers should allow for reinstatement of mains electricity, water and drainage and for the costs of renovation or rebuild works. The elevated position and planning permission reduce some development risk but refurbishment and contractor costs will be the buyer's responsibility.
The location offers strong lifestyle appeal — dramatic sunset views across the South Devon coastline, proximity to the South West Coast Path, surf beaches and local amenities — making the site suitable for a high-value family home, holiday accommodation or a development project for specialist buyers. Flooding risk is low and local crime levels are very low, adding to the plot's practicality and desirability.
Prospective purchasers should factor in the need to reconnect services, complete the approved works, and manage any conservation or local-consent considerations. For buyers seeking a prominent coastal position with planning in place, this represents one of the limited opportunities in the South Hams area.
Land for sale in Warren Road (cnr Marine Dr), Bigbury on Sea, DEVON, TQ7 — £979,000 • 1 bed • 1 bath • 2379 ft²
4 bedroom detached house for sale in Marine Drive, Bigbury On Sea, TQ7 — £995,000 • 4 bed • 5 bath • 3000 ft²
3 bedroom detached bungalow for sale in Parker Road, Bigbury On Sea, TQ7 — £700,000 • 3 bed • 2 bath • 1600 ft²
3 bedroom detached bungalow for sale in Gattery Lane, Brixham, TQ5 — £350,000 • 3 bed • 1 bath • 850 ft²
4 bedroom detached bungalow for sale in Challaborough, Kingsbridge, TQ7 — £500,000 • 4 bed • 3 bath • 893 ft²
Detached house for sale in Bolt Head, Salcombe, TQ8 — £2,000,000 • 1 bed • 1 bath • 615 ft²






























