**Standout Features:**
- Extended 4-bedroom semi-detached house
- Modern kitchen and bathroom suites
- Spacious 40' x 23' rear garden, ideal for family activities
- Loft conversion with shower and study area
- Located close to Northlands Wood Primary School and Princess Royal Hospital
- Garage offering potential for conversion (subject to planning permission)
- Clean and neutral decor, ready for immediate move-in
- EPC rating: C, Council Tax Band: D
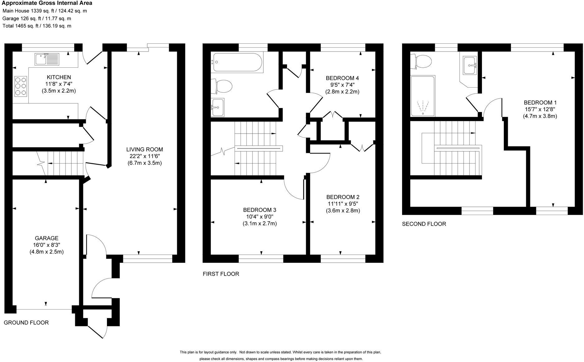
This meticulously maintained semi-detached home offers an excellent opportunity for families seeking comfort and convenience in the desirable Northlands Wood neighborhood. Boasting four double bedrooms and two modern bathrooms, this spacious property extends over three levels and features a welcoming lounge/dining room with direct access to the generous rear garden, perfect for outdoor gatherings or a safe play area for children.
With the added bonus of a loft conversion designed as a top-floor master suite, complete with its own shower and study area, you can enjoy both privacy and multifunctionality. Potential buyers will appreciate the clean, neutral decor and the ample parking options, including a garage that holds the promise of conversion potential for those looking to maximize space.
Situated just a 10-minute walk from Northlands Wood Primary School and local amenities, this home combines suburban tranquility with accessibility. Viewing is highly recommended; with this level of appeal and a price range of £450,000-£475,000, this property won’t last long. Don’t miss your chance to secure a perfect family home in a highly sought-after area!
3 bedroom semi-detached house for sale in Rowan Close, Haywards Heath, RH16 — £400,000 • 3 bed • 1 bath • 864 ft²
4 bedroom detached house for sale in Rushwood Close, Haywards Heath, RH16 — £540,000 • 4 bed • 1 bath • 1261 ft²
4 bedroom detached house for sale in The Oaks, Haywards Heath, RH16 — £650,000 • 4 bed • 2 bath • 1345 ft²
3 bedroom end of terrace house for sale in The Pines, Haywards Heath, RH16 — £325,000 • 3 bed • 1 bath • 670 ft²
4 bedroom detached house for sale in Hoblands, Haywards Heath, RH16 — £500,000 • 4 bed • 1 bath • 1083 ft²
4 bedroom detached house for sale in Greenhill Park, Haywards Heath, RH17 — £700,000 • 4 bed • 2 bath • 1568 ft²


























































































































































































