Ready-to-move-in two-bedroom with south-facing garden and fast trains to London.
Two double bedrooms with original fireplaces and exposed floorboards
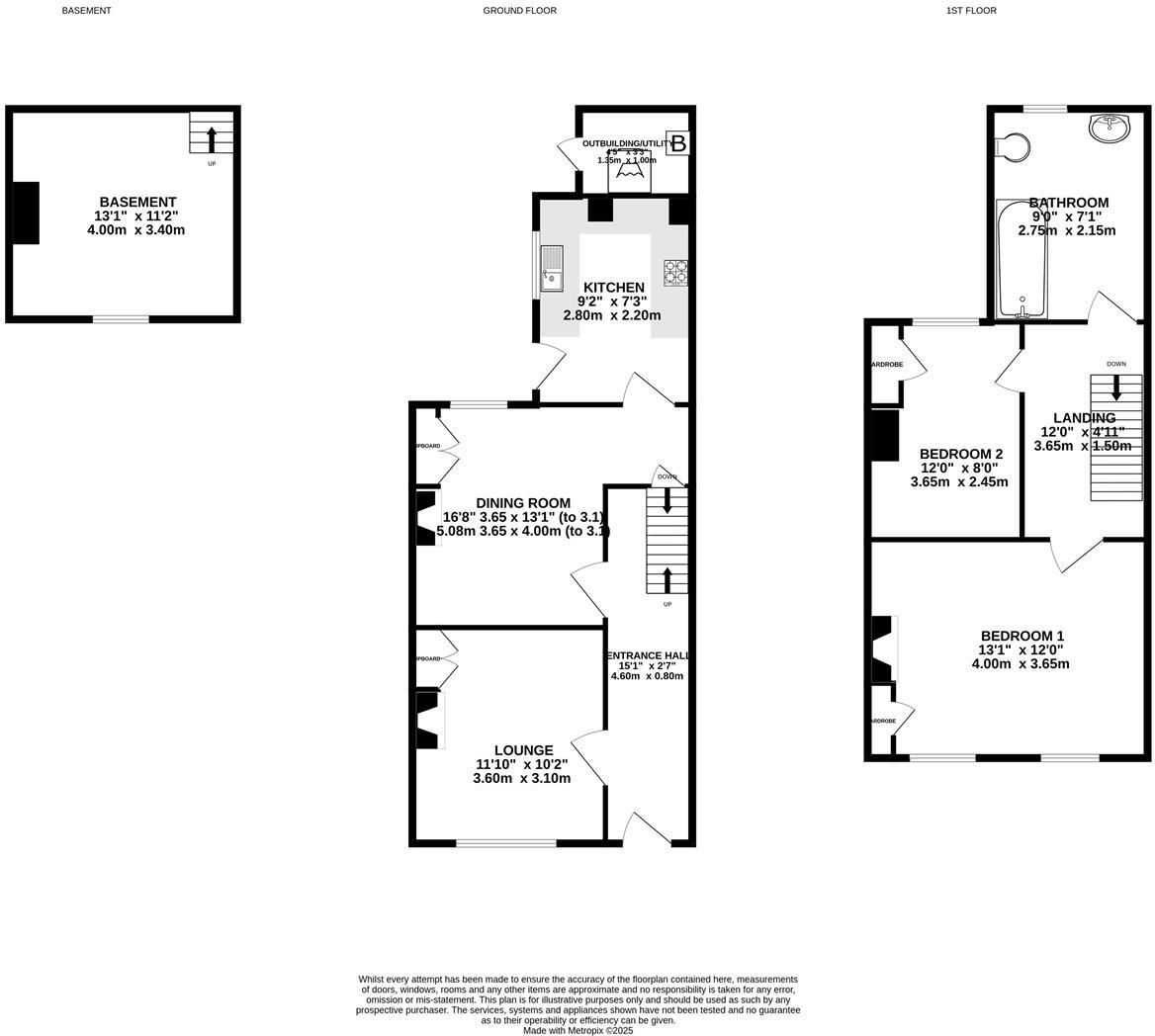
This well-presented mid-terrace Victorian cottage offers comfortable, ready-to-move-in accommodation close to Rochester High Street. The house keeps many period details — exposed floorboards, original fireplaces and new sash-style windows with shutters — while benefitting from a new log burner and upgraded glazing. Its compact layout of separate lounge and dining room, useful basement and south-facing garden suits a small family or professional couple.
Practical strengths include fast broadband, excellent mobile signal, freehold tenure, EPC C and straightforward commuting: Rochester and Chatham stations are within walking distance with a 35–40 minute fast service to London. Highly regarded local primary and secondary schools are nearby, and local shops, cafés, restaurants and riverside walks are on the doorstep.
There is scope to increase living space subject to planning: the rear outbuilding has been incorporated by others on the street and the loft could be converted, but those changes will need usual permissions. The basement has natural light and power but limited head height so suitability depends on intended use. The property has solid brick walls likely without installed cavity insulation, which may affect heating costs and any retrofit work.
Be candid about location factors: the immediate area scores high for crime and is classed as deprived, so buyers should consider security and local amenity implications. Overall this is a characterful, centrally positioned cottage with good commuter links and potential to add value for owners willing to invest in modest upgrading or extensions.
3 bedroom terraced house for sale in St. Bartholomews Terrace, Rochester, Kent, ME1 — £325,000 • 3 bed • 1 bath • 1020 ft²
2 bedroom terraced house for sale in Mount Road, Rochester, Kent, ME1 — £240,000 • 2 bed • 1 bath • 722 ft²
3 bedroom semi-detached house for sale in Crow Lane, Rochester, ME1 — £400,000 • 3 bed • 1 bath • 1332 ft²
4 bedroom terraced house for sale in Crow Lane, Rochester, ME1 — £675,000 • 4 bed • 2 bath • 1647 ft²
2 bedroom terraced house for sale in Rose Street, Rochester, ME1 — £220,000 • 2 bed • 1 bath • 748 ft²
2 bedroom terraced house for sale in Baker Street, Rochester, ME1 — £250,000 • 2 bed • 1 bath • 806 ft²






















































































