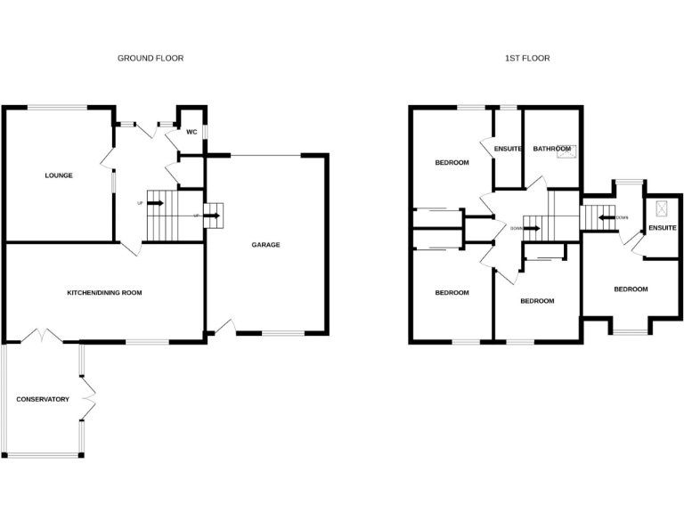
**Standout Features:**
- Newly renovated four-bedroom detached villa
- Prime location in the Inshes area of Inverness, near amenities
- Spacious layout with open-plan kitchen/diner and sunroom
- Gas heating, double glazing, and log-burning stove
- Well-maintained gardens with patio and decking areas
- Off-street parking for several cars and double garage with electric door
**Summary:**
Step into this beautifully renovated four-bedroom detached villa, ideally situated in the sought-after Inshes area of Inverness. With a blend of contemporary design and welcoming warmth, this stunning home features a bright and spacious open-plan kitchen and dining area that flows seamlessly into a tranquil sunroom, perfect for relaxation and entertainment. Enjoy breathtaking views from the front-facing lounge equipped with a cozy log-burning stove, and appreciate the practical layout that includes multiple storage options, generous bedrooms, and modern bathrooms.
Outside, the property boasts well-maintained gardens with a large paved patio perfect for al fresco dining, surrounded by raised plant beds that add a touch of greenery and privacy. With ample off-street parking and a double garage, this home is poised to cater to the needs of families and guests alike. Located just a short distance from local shops, schools, and the Inverness city center, this charming villa offers an exceptional lifestyle. Act quickly—opportunities like this in such a desirable area are rare and won’t last long!
5 bedroom detached house for sale in 16 Drummond Circus, Drummond, Inverness, IV2 4QP, IV2 — £630,000 • 5 bed • 4 bath • 2400 ft²
5 bedroom detached house for sale in Croft Lane, Inverness, IV3 — £500,000 • 5 bed • 3 bath • 2098 ft²
4 bedroom detached house for sale in 7 Upper Slackbuie, Slackbuie, Inverness. IV2 6BY, IV2 — £665,000 • 4 bed • 4 bath • 3562 ft²
4 bedroom detached house for sale in 4 Mey Avenue, Inverness, IV2 — £375,000 • 4 bed • 3 bath
4 bedroom detached house for sale in 23 Woodgrove Crescent, Inshes, Inverness, Highland. IV2 5HN, IV2 — £375,000 • 4 bed • 3 bath • 1593 ft²
5 bedroom detached house for sale in Achvaneran, 37 Drumdevan Road, Inverness, IV2 4DB, IV2 — £350,000 • 5 bed • 3 bath • 2185 ft²






















































































































































