Compact modern flat with short-let potential in lively Hatton Garden.
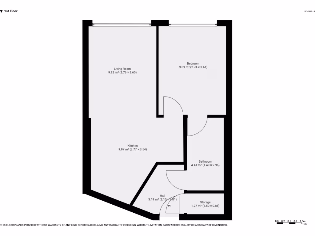
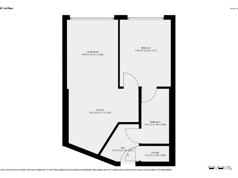
Approx. 392 sq ft compact one-bedroom apartment
A compact one-bedroom apartment in Eden Square, set in Liverpool city centre’s Hatton Garden. The open-plan layout, contemporary kitchen and good natural light make efficient urban living simple. Lift access and modern construction (2003–2006) suit buyers seeking low immediate maintenance. Broadband speeds are fast and mobile signal is excellent — useful for both professionals and short-let guests.
The property sits in a cosmopolitan, multicultural student neighbourhood. That brings strong rental demand and short-let potential (permitted), making the flat attractive to investors or buyers seeking rental income. The 107-year lease gives long-term security for a leasehold purchase.
Important practical points are clear: the flat is small at approximately 392 sq ft, heated by electric room heaters rather than a communal gas system, and doubles-glazing is present though the install date is unknown. Service charge and ground rent are notable ongoing costs (approx. £1,900 service charge; £270 ground rent annually). Buyers should factor these into yield calculations.
This is a straightforward, centrally located apartment with clear income potential in a student-dense area. It is best suited to investors, professionals, or a first-time buyer comfortable with city-centre living and leasehold costs. Viewing is recommended to assess layout and noise levels in person.
1 bedroom apartment for sale in 9 Hatton Garden, Liverpool, Merseyside, L3 — £95,000 • 1 bed • 1 bath • 484 ft²
1 bedroom apartment for sale in 9 Hatton Garden, Liverpool, Merseyside, L3 — £95,000 • 1 bed • 1 bath • 484 ft²
2 bedroom apartment for sale in Eden Square, Cheapside, Liverpool, L2 — £175,000 • 2 bed • 2 bath • 614 ft²
1 bedroom apartment for sale in Eden Square, Cheapside, Liverpool, L2 — £140,000 • 1 bed • 1 bath • 388 ft²
1 bedroom flat for sale in London Road, City Centre, Liverpool, L3 — £130,000 • 1 bed • 1 bath • 722 ft²
1 bedroom apartment for sale in Victoria Street, Liverpool, L1 — £100,000 • 1 bed • 1 bath • 728 ft²










































