Light-filled modern living close to excellent schools and local amenities.
Three bedroom semi-detached after rear extension
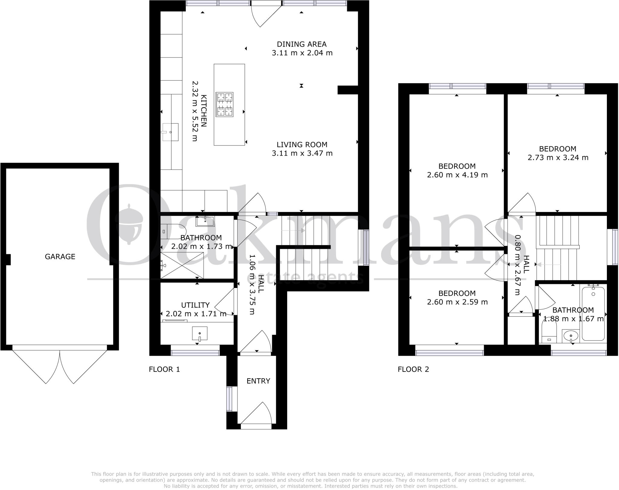
This tastefully extended three-bedroom semi delivers contemporary family living in a well-regarded Bromsgrove neighbourhood. The rear extension creates an open-plan kitchen/dining room with island and bi-fold doors, flowing directly onto a landscaped south-facing garden — a bright, practical layout for everyday family life and entertaining.
The ground floor includes a useful utility and a modern shower room, while the first floor provides three comfortable bedrooms and a family bathroom. The property has been newly renovated throughout, with double glazing, gas central heating and clean, modern finishes that reduce immediate maintenance needs.
Parking is provided by an attached garage and driveway; the garage also offers sensible conversion potential (subject to planning) should you need extra living space or a home office. Note the home sits on a relatively small plot and the overall internal size is modest at about 781 sq ft, which may feel compact for larger families. Planning any garage conversion will require checks with the local authority.
3 bedroom semi-detached house for sale in Hartford Road, Bromsgrove, B60 — £365,000 • 3 bed • 2 bath • 1028 ft²
3 bedroom semi-detached house for sale in Little Meadow Croft, Northfield, Birmingham, West Midlands, B31 — £240,000 • 3 bed • 1 bath • 883 ft²
3 bedroom semi-detached house for sale in Pennine Road, Bromsgrove, Worcestershire, B61 — £325,000 • 3 bed • 1 bath • 815 ft²
3 bedroom terraced house for sale in Illey Close, Birmingham, B31 — £274,000 • 3 bed • 1 bath • 789 ft²
3 bedroom detached house for sale in Highfields, Bromsgrove, Worcestershire, B61 — £600,000 • 3 bed • 3 bath • 2193 ft²
3 bedroom semi-detached house for sale in Perryfields Road, Bromsgrove, Worcestershire, B61 — £300,000 • 3 bed • 2 bath • 1366 ft²














































































































