Well-presented three-bed with parking and low-maintenance garden — ideal first-time purchase.
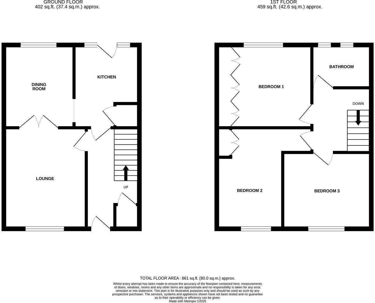
Three double bedrooms with practical layout
Modern fitted kitchen and bathroom with natural light
Large double-width block-paved driveway, off-street parking
Low-maintenance rear garden, composite deck and outdoor WC
Boiler located in bedroom wardrobe, reduces storage space
Cavity walls likely lack added insulation; energy upgrades possible
Small plot in area with above-average crime and higher deprivation
Single family bathroom; one shower/bathroom only
This mid-terraced, three-bedroom freehold on Tonbridge Walk presents a straightforward, affordable entry into Scartho’s housing market. The house is well presented with a modern fitted kitchen and bathroom, a lounge opening into a dining room, and three double bedrooms — a practical layout for first-time buyers or small families. The front double-width, block-paved driveway provides convenient off-street parking for two cars. The rear is designed for low upkeep with an artificial lawn, composite decked terrace and a useful outdoor WC.
Practicalities are honest and clear: the property was built mid-20th century and retains cavity walls likely without added insulation, so energy performance may lag newer builds. There is one family bathroom and the boiler is housed within a bedroom wardrobe, which slightly reduces bedroom storage. The plot is small and the area records above-average crime and higher local deprivation, factors to weigh when considering long-term plans or resale.
On balance this home delivers solid value at the asking price with low running costs from mains gas heating and very low council tax banding. The modern kitchen and low-maintenance garden reduce immediate spend, while the property’s layout and parking make it a practical, turn-key option for buyers seeking an affordable family home or first purchase in Scartho.
3 bedroom terraced house for sale in Mendip Avenue, Scartho, DN33 — £160,000 • 3 bed • 1 bath • 807 ft²
3 bedroom end of terrace house for sale in Southwold Crescent, Grimsby, DN33 — £168,000 • 3 bed • 1 bath • 669 ft²
3 bedroom semi-detached house for sale in Waltham Road, Scartho,Grimsby, DN33 — £320,000 • 3 bed • 1 bath • 1225 ft²
3 bedroom terraced house for sale in Antrim Way, Grimsby, Lincolnshire, DN33 — £135,000 • 3 bed • 1 bath • 897 ft²
3 bedroom semi-detached house for sale in Worlaby Road, Grimsby, DN33 — £165,000 • 3 bed • 1 bath • 905 ft²
3 bedroom semi-detached house for sale in Walker Avenue, Scartho, Grimsby, DN33 — £177,500 • 3 bed • 1 bath • 939 ft²














































































































