Chain‑free, single-level living with a sunny private garden and garage.
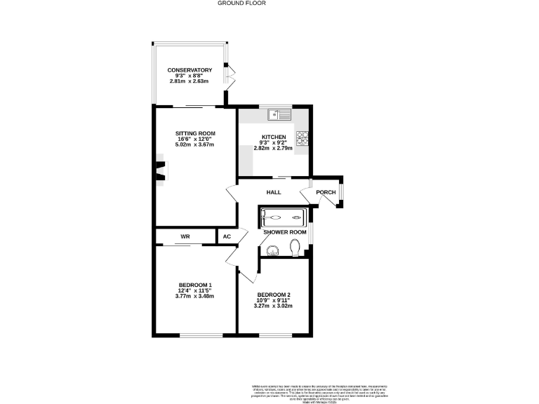
Two double bedrooms; one with built‑in wardrobe
Sitting room opens into UPVC conservatory, west light
Level rear garden c.50' (15.2m) with pond and shed
Single garage opposite with power and light
Parking space to front plus visitors' parking
Freehold, built 1993, offered with no onward chain
Service charge £120 pa; council tax described as affordable
Area recorded as higher crime level — factor for buyers
Set at the end of a small, quiet cul-de-sac, this semi‑detached bungalow offers single‑storey living ideal for downsizers or retirees. The sitting room opens into a UPVC conservatory that captures the westerly light, and the level rear garden of about 50' is private and easy to maintain. A single garage with power and light sits opposite for extra storage or a workshop.
The accommodation is straightforward and well maintained: two double bedrooms (one with a built‑in wardrobe), a fitted kitchen with washing machine plumbing, and a shower room originally configured as a bathroom. At roughly 710 sq ft the layout is compact but comfortable, and the property is offered freehold and with no onward chain, allowing a swift move.
Practical points to note: the area shows a higher recorded crime level, and the home is an average‑sized bungalow that will suit buyers wanting low‑level living rather than larger family space. Service charges are modest (£120) and council tax is described as affordable. The property was built in 1993 and presents opportunity for modest updating or cosmetic personalisation where desired.
Location is a strong feature – Wells city centre amenities, independent shops, and good schooling are all within reach, while Bristol and Bath are commutable for day trips. For someone seeking a peaceful, manageable home with outdoor space and garage convenience, this bungalow offers a practical, chain‑free option.
2 bedroom bungalow for sale in Somerleaze Close, Wells, Somerset, BA5 — £315,000 • 2 bed • 1 bath • 847 ft²
2 bedroom semi-detached bungalow for sale in Lethbridge Road, Wells, Somerset, BA5 — £255,000 • 2 bed • 1 bath • 407 ft²
2 bedroom semi-detached bungalow for sale in Welsford Avenue, Wells, BA5 — £330,000 • 2 bed • 1 bath • 635 ft²
2 bedroom bungalow for sale in Millers Gardens, Wells, BA5 — £379,950 • 2 bed • 1 bath • 936 ft²
3 bedroom bungalow for sale in Manning Close, Wells, Somerset, BA5 — £300,000 • 3 bed • 1 bath • 738 ft²
2 bedroom bungalow for sale in Ken Close, Wells, Somerset, BA5 — £285,000 • 2 bed • 1 bath • 610 ft²






















































