**Standout Features:**
- Elegant period home dating from 1901
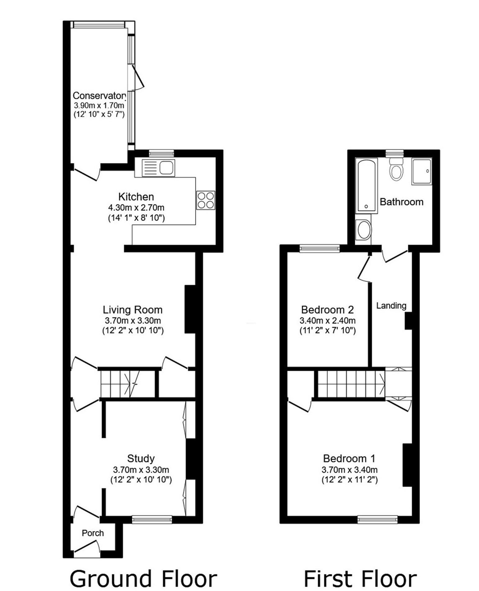
- 2 spacious double bedrooms
- Recently refitted kitchen and bathroom
- Approved planning for a loft conversion to create a third bedroom with en-suite
- Large, beautifully maintained rear garden
- Chain-free sale for immediate occupancy
- Located in the affluent village of Helpston with low crime rates
This charming semi-detached Victorian property in Helpston presents a unique opportunity to own a delightful home that combines historic elegance with modern living. With its tasteful renovations, including a stylish refitted kitchen with integrated appliances and a contemporary bathroom, this residence is move-in ready. The generous rear garden, larger than expected, offers ample outdoor space for families or gardening enthusiasts. Future growth potential exists with approved planning consent for a loft conversion, allowing you to expand into a third bedroom with an en-suite—a perfect investment for growing families or those seeking extra space.
Situated in a tranquil, rural setting, this property contributes to a peaceful lifestyle, while still being a stone's throw away from essential amenities and reputable schools, such as John Clare Primary School, rated Good by Ofsted. With no onward chain, this captivating home invites you to envision yourself living in its charming embrace, making it an utterly compelling choice. Don’t miss out—properties like this, with such a desirable mix of features and potential, are rare to find!
3 bedroom detached house for sale in Glinton Road, Helpston, Peterborough, PE6 — £325,000 • 3 bed • 2 bath • 1130 ft²
4 bedroom detached house for sale in Heath Road, Helpston, Peterborough, PE6 — £650,000 • 4 bed • 2 bath • 2066 ft²
3 bedroom detached house for sale in Maxey Road, Helpston, Peterborough, PE6 — £350,000 • 3 bed • 2 bath • 1098 ft²
3 bedroom semi-detached house for sale in Willow Mews, Helpston, PE6 — £327,500 • 3 bed • 2 bath • 1187 ft²
5 bedroom detached house for sale in Cuckoo Close, Helpston, Peterborough, PE6 — £550,000 • 5 bed • 3 bath • 2389 ft²
3 bedroom link detached house for sale in Glinton Road, Helpston, PE6 — £335,000 • 3 bed • 2 bath • 1228 ft²






















































