TS10 3BP - 1 bed seaside development opportunity in Lord Street, TS10…

View on Property Piper

Commercial property for sale in For Sale: Lord Street, Redcar, North Yorkshire, TS10

Summary - 104 LORD STREET REDCAR TS10 3BP

1 bed 1 bath Commercial Property

Large former social club with flexible layout and clear renovation potential.
Freehold commercial building in central Redcar
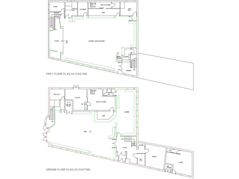
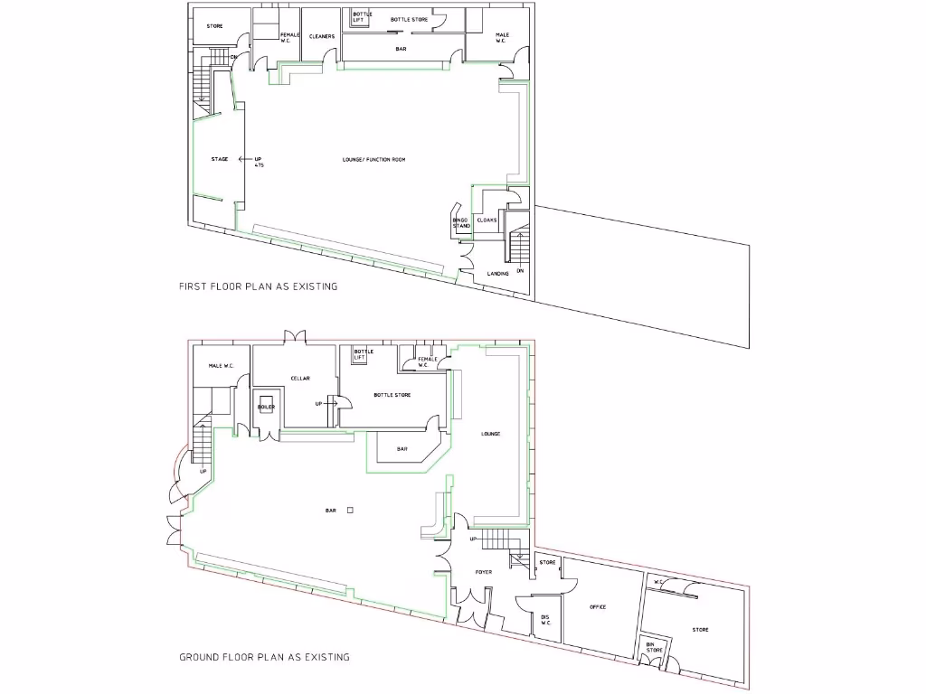
A substantial mid-20th-century brick building in central Redcar offered freehold with immediate development potential. Previously a social club, the layout includes large function rooms, bars, storerooms, and cellar space across two floors — a flexible shell for leisure, community or mixed commercial uses (subject to planning).

The property benefits from a seaside high-street position between shopping and residential areas, fast broadband and excellent mobile signal, and basic utilities (electricity, water and waste) in situ. Floor plans are available and the plot is described as a decent size for extensions or reconfiguration.

Important condition notes: there is significant roof damage and the building needs renovation; the asking price reflects this. The building will require re-rating for business rates when occupied. The surrounding area scores as deprived and the immediate locality is classified as endeavouring social renters, which investors should factor into income and use plans.

This opportunity suits buyers willing to manage refurbishment and planning risk to unlock value — particularly operators seeking a venue or investors aiming for conversion, refurbishment or demolition/redevelopment in a seaside town centre location.

Property Details

Image Descriptions

Floorplan Description

Rooms

Textual Property Features

Target Audience

AI Tags

Detected Visual Features

Nearby Schools

Nearest Bars And Restaurants

,,,,}

Nearest General Shops

,,}

Nearest Grocery shops

,,}

Nearest Supermarkets

,,}

Nearest Religious buildings

,,}

Nearest Medical buildings

,,,}

Nearest Leisure Facilities

,,,,}

Nearest Tourist attractions

,,}

Nearest Train stations

,,,,}

Nearest Bus stations and stops

,,,,}

Nearest Hotels

,,}

Tags

Local Market Stats

AirBnB Data

Similar Properties

Meta

High Res Images

Compatible Images

Low res Images

Thumbnails

Raw Images

High Res Floorplan Images

Compatible Floorplan Images

Low res Floorplan Images

FloorplanImages Thumbnail

Raw Floorplan Images