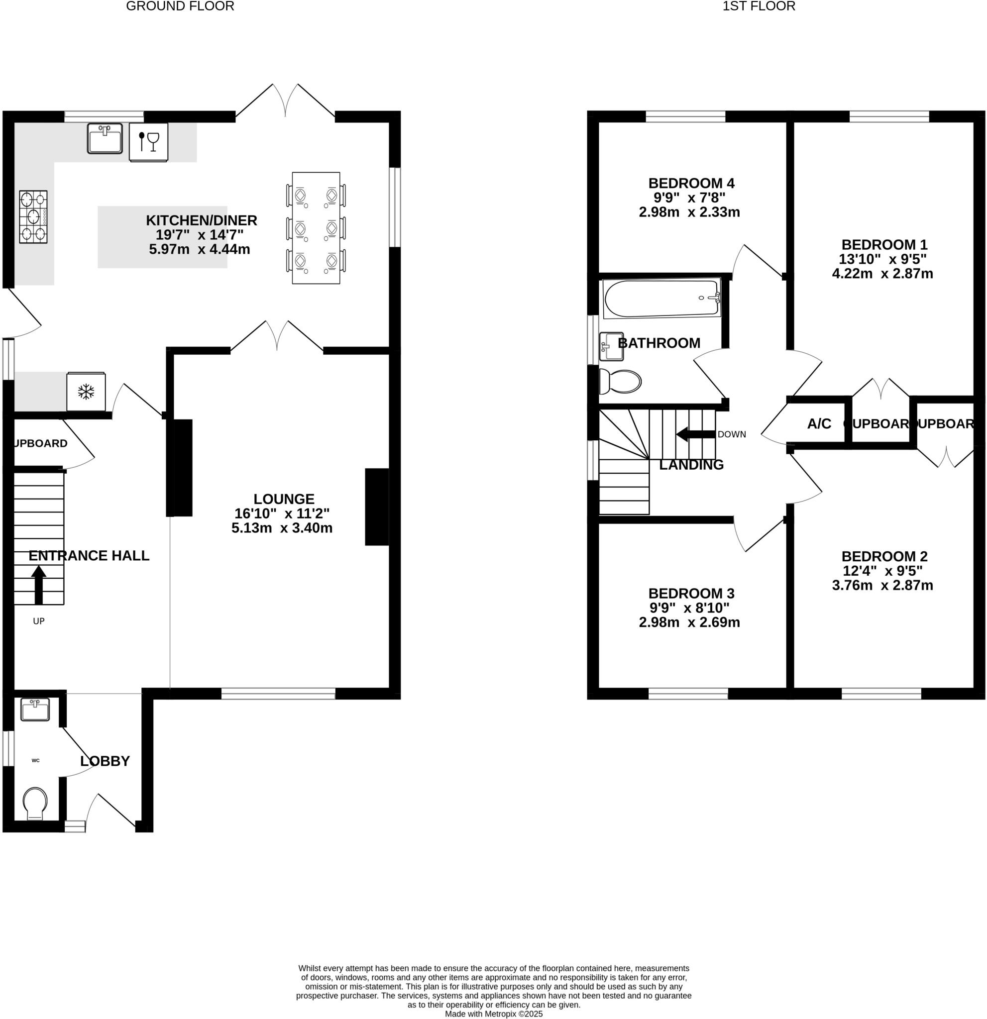
Four double bedrooms with built-in wardrobes
Set on a corner plot in a quiet cul‑de‑sac, this four double bedroom detached house offers practical family living within walking distance of Blandford town centre and Archbishop Wake School. The heart of the home is a bright open-plan kitchen/dining space with integrated appliances, island breakfast bar and French doors opening to a recently landscaped rear garden — ideal for everyday family life and entertaining.
Practical strengths include a detached garage, off‑street parking for multiple vehicles, mains gas central heating and modern UPVC double glazing. The plot is a decent size for the area and the rear garden is private and low maintenance, with paved patio and planted borders.
Buyers should note the property’s overall internal area is modest (around 881 sq ft) for a four-bedroom home, and there is a single family bathroom and cloakroom only. The location has a medium flood risk — prospective purchasers should review local flood reports and insurance implications. The building dates from the late 1960s/early 1970s, so while much is updated, further cosmetic updating or long-term maintenance may be needed.
This home will suit growing families who value proximity to good schools, riverside walks at Stour Park and town amenities, and who want a ready-to-move-into kitchen and garden with scope to adapt interiors to modern tastes. Investors seeking rental income should weigh the four-bedroom layout against the modest square footage and single bathroom provision.











































































