Move-in ready with parking and a garden, ideal for young families.
New-build mid-terrace with modern fixtures and upgraded kitchen included
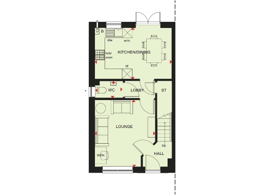
This three-bedroom mid-terrace new build on Welshpool Road offers practical, modern living across two storeys. An open-plan kitchen and dining area with French doors opens onto a rear garden, while the lounge provides comfortable, well-proportioned living space. The main bedroom includes an en suite; a second double and a smaller third bedroom suit family use or flexible home working.
Included incentives make moving easier: a £14,499 deposit boost, upgraded kitchen and fitted flooring are all provided. Two off-street parking spaces and a low-maintenance front garden suit busy households and commuters. The development sits in a semi-rural, low-crime area with pleasant pond and meadow views nearby and good broadband speeds.
Practical limitations are clear: the property’s overall size is small (approximately 697 sq ft) and the third bedroom is compact, so storage and space are tighter than larger family homes. Tenure is not specified. Buyers seeking generous room sizes or larger private gardens should note the modest interior footprint and plot scale.
3 bedroom detached house for sale in Welshpool Road
Bicton Heath
Shrewsbury
Shropshire
SY3 8HA
, SY3 — £335,995 • 3 bed • 1 bath • 771 ft²
3 bedroom semi-detached house for sale in Welshpool Road
Bicton Heath
Shrewsbury
Shropshire
SY3 8HA
, SY3 — £314,995 • 3 bed • 1 bath • 736 ft²
3 bedroom semi-detached house for sale in Welshpool Road
Bicton Heath
Shrewsbury
Shropshire
SY3 8HA
, SY3 — £314,995 • 3 bed • 1 bath • 736 ft²
3 bedroom semi-detached house for sale in Welshpool Road
Bicton Heath
Shrewsbury
Shropshire
SY3 8HA
, SY3 — £305,995 • 3 bed • 1 bath • 736 ft²
3 bedroom end of terrace house for sale in Welshpool Road
Bicton Heath
Shrewsbury
Shropshire
SY3 8HA
, SY3 — £296,995 • 3 bed • 1 bath • 680 ft²
2 bedroom semi-detached house for sale in Welshpool Road
Bicton Heath
Shrewsbury
Shropshire
SY3 8HA
, SY3 — £259,995 • 2 bed • 1 bath • 552 ft²






























































