Chain-free three-bedroom family home with parking and great transport links.
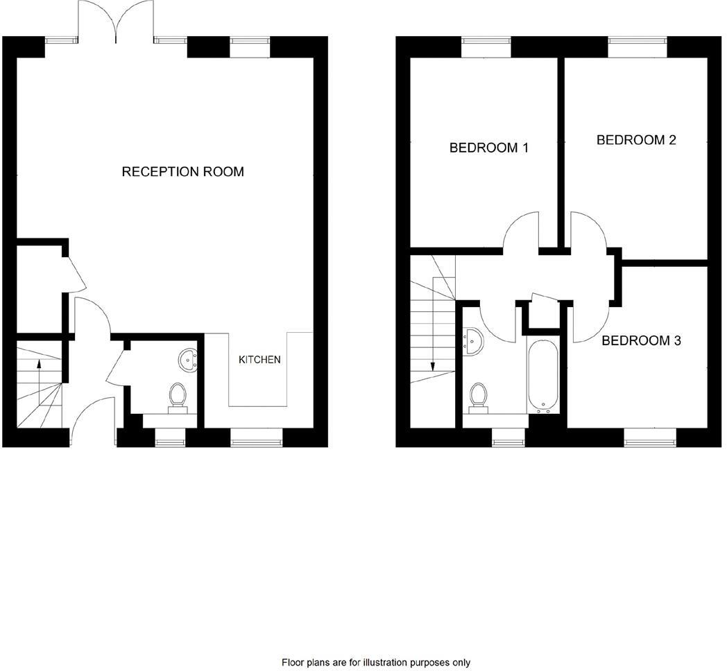
Three bedrooms with family bathroom and ground-floor cloakroom
Open-plan lounge/dining area with wood-style flooring
Private off-street parking and access to communal car park
Small rear garden, part paved with lawn and shed
Chain free, freehold; EPC rating C, built 2003–2006
Good commuter links: Barking station nearby and A13 access
Glazing install date unknown; appliances and services untested
Located in a relatively deprived area; average local crime
This mid-terrace three-bedroom house on Ripple Road offers a bright, modern living space suited to young families or buyers seeking good commuter links into London. The open-plan lounge and dining area with wood-style flooring creates a sociable ground floor while three first-floor bedrooms and a family bathroom deliver straightforward family accommodation.
Practical benefits include private off-street parking with access to a communal car park, a small rear garden laid to lawn and paved, gas central heating and an EPC rating of C. The property is chain free and freehold, constructed in the early 2000s, and provides comfortable move-in-ready accommodation with scope for cosmetic updating.
Location is a strong selling point: Barking town centre, mainline and underground stations, local bus routes and the A13 are all close by, making commutes into Docklands and the City manageable. Good local schools include Ripple Primary and Barking Abbey School, and local amenities are plentiful.
Notable factual points: the area scores as relatively deprived and reported crime is average; glazing install date is unknown and white goods/appliances have not been tested. The plot is small and the house is a mid-terrace, so outdoor space is limited. Buyers seeking a larger garden or a completely turnkey high-end finish should factor in potential improvements.
3 bedroom terraced house for sale in Ripple Road, Barking, IG11 — £425,000 • 3 bed • 1 bath • 967 ft²
3 bedroom terraced house for sale in Ripple Road, Barking, IG11 — £450,000 • 3 bed • 1 bath • 754 ft²
3 bedroom terraced house for sale in Kendal Avenue, Barking, IG11 — £450,000 • 3 bed • 1 bath • 937 ft²
2 bedroom terraced house for sale in Lancaster Avenue, Barking, IG11 — £400,000 • 2 bed • 1 bath • 830 ft²
2 bedroom flat for sale in Ripple Road, Barking IG11 7RW, IG11 — £275,000 • 2 bed • 1 bath • 528 ft²
3 bedroom terraced house for sale in Movers Lane, Barking, IG11 — £375,000 • 3 bed • 1 bath • 905 ft²






















































