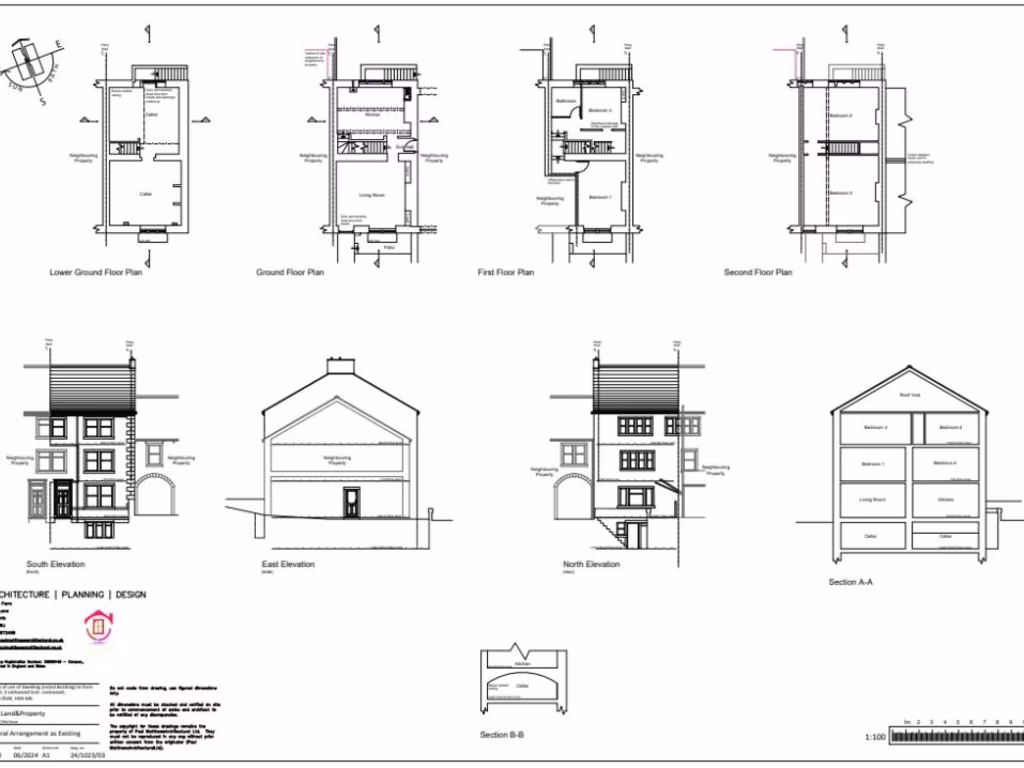
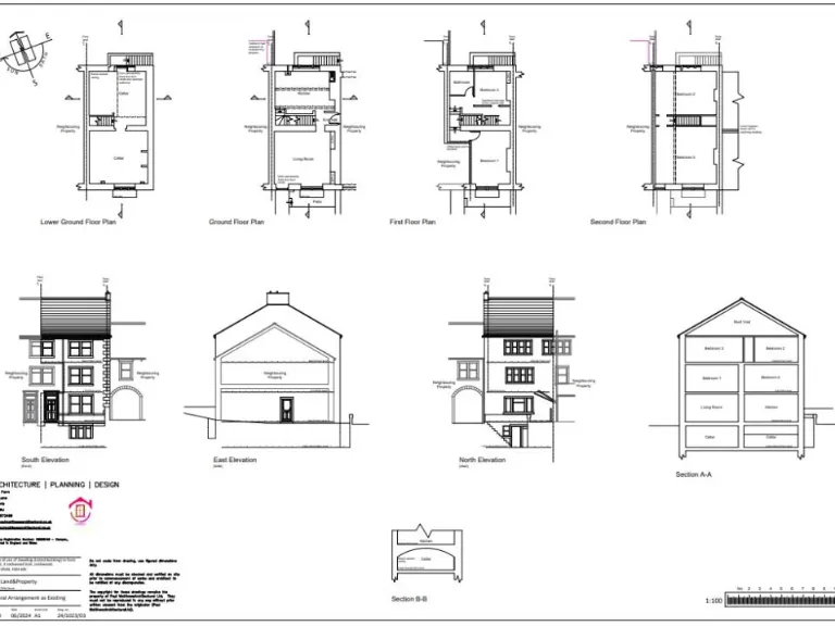
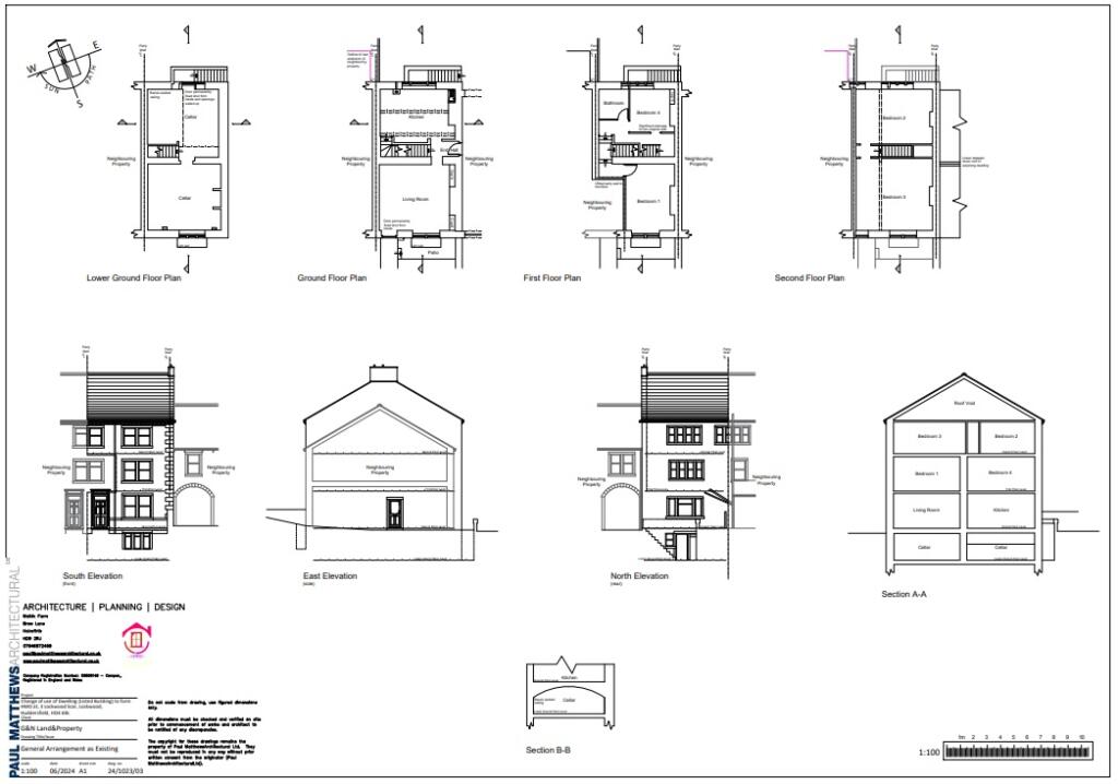
Spacious renovation project with planning consent for HMO and apartment conversion.
- Full planning permission for apartment plus three-bedroom HMO
- Grade II listed — restrictions and specialist consent required
- Substantial accommodation over four levels with cellar access
- Requires full renovation; single glazed sash windows throughout
- One bathroom only in current layout; conversion needed for multiple units
- Sold via Modern Auction: buyers’ fees and reservation fee apply
- Cash investors only; chain-free and long lease (896 years)
- Location: prime student area, high crime and medium flood risk
A substantial Grade II listed terraced house in Lockwood Scar, offered at auction with full planning permission to create an apartment plus a three-bedroom HMO. Set over lower-ground, ground, first and second floors, the property is unusually spacious for the area and includes front and rear gardens and a garage — attractive features for investors targeting students and nearby professionals.
This is a renovation project: the house requires extensive modernisation, has single-glazed sash windows, and currently offers one bathroom. The building’s listed status will affect what can be changed and will add complexity and cost to works, though planning permission for the proposed conversion is already granted, reducing some planning risk.
Practical considerations for buyers: the sale is by Modern Auction with buyers’ fees and a non-refundable reservation fee; the transaction is suitable for cash purchasers only. The location is a prime student area with fast broadband and excellent mobile signal, but it sits in a highly deprived neighbourhood with elevated crime and medium flood risk — factors that affect lettings, insurance and management.
For the right investor this presents clear potential: long leasehold, chain-free sale and permitted conversion to multiple lettable units. Expect refurbishment, listed-building constraints, and additional auction costs, but also the chance to deliver a high-yield rental scheme near local universities and transport links.
5 bedroom terraced house for sale in Manor Street, Huddersfield, HD4 — £170,000 • 5 bed • 2 bath • 1136 ft²
1 bedroom terraced house for sale in Blackmoorfoot Road, Huddersfield, HD4 — £55,000 • 1 bed • 1 bath • 531 ft²
Commercial property for sale in Church Street, Moldgreen, Huddersfield, HD5 — £180,000 • 5 bed • 1 bath • 4013 ft²
2 bedroom end of terrace house for sale in Stile Common Road, Huddersfield, HD4 — £70,000 • 2 bed • 1 bath • 619 ft²
4 bedroom terraced house for sale in Woodhead Road, Lockwood, Huddersfield, HD4 6ET, HD4 — £140,000 • 4 bed • 2 bath • 925 ft²
4 bedroom terraced house for sale in 245 Manchester Road, Huddersfield, West Yorkshire HD1 3JG, HD1 — £75,000 • 4 bed • 1 bath • 743 ft²






























































































