Seaside terraced home with garden and outbuilding for conversion potential.
Three bedrooms with conservatory overlooking generous rear garden
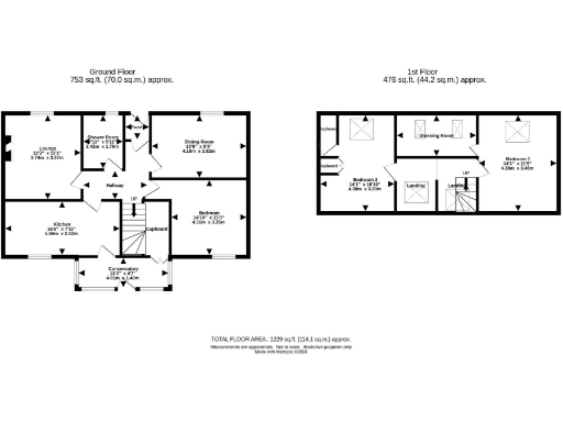
Comfortable three-bedroom terraced cottage in Port William, set within a generous rear garden and just a short walk from the beach and village amenities. The house includes a conservatory overlooking the garden, a spacious dining kitchen, separate dining room and lounge, plus a ground-floor shower room. An attached outbuilding/workshop with mains power offers storage now and potential for conversion to ancillary accommodation with appropriate consents.
Practical features include full UPVC double glazing, oil-fired central heating and freehold tenure. The property is average in size (1,229 sq ft) and presented in generally good condition, but the roof/backyard area shows signs of damp/mould that will need inspection and repair. EPC is band E and there is one bathroom only, so some updating and energy improvements would boost comfort and running costs.
This home suits buyers seeking a seaside base, holiday property or an affordable family starter in a quiet, remoter community. Broadband speeds are average though mobile signal is excellent. Note the wider area is relatively deprived and services beyond village-level (secondary schools, larger supermarkets) require travel to nearby towns, so factor travel needs into plans.
Overall the property offers roomy accommodation, scope to personalise and garden space rare for terraced homes in the village. If you want a character cottage close to the shore with conversion potential and are prepared to carry out targeted maintenance and energy upgrades, this presents good value at the asking price.
3 bedroom terraced house for sale in Main Street, Port William, DG8 — £85,000 • 3 bed • 1 bath • 972 ft²
4 bedroom detached house for sale in High Street, Port William, DG8 — £380,000 • 4 bed • 2 bath • 3143 ft²
3 bedroom end of terrace house for sale in Main Street, Isle Of Whithorn, DG8 — £200,000 • 3 bed • 1 bath • 999 ft²
3 bedroom semi-detached house for sale in Cairnsmore Court, Whithorn, Newton Stewart, DG8 — £75,000 • 3 bed • 1 bath • 694 ft²
3 bedroom house for sale in Alticry Lodge, Port William, Newton Stewart, DG8 — £275,000 • 3 bed • 2 bath • 880 ft²
3 bedroom cottage for sale in Main Street, Whauphill, DG8 — £140,000 • 3 bed • 1 bath • 904 ft²


















































































