Extended four-bedroom layout with landscaped garden and parking for two.
Bay-fronted lounge plus second reception and dining area
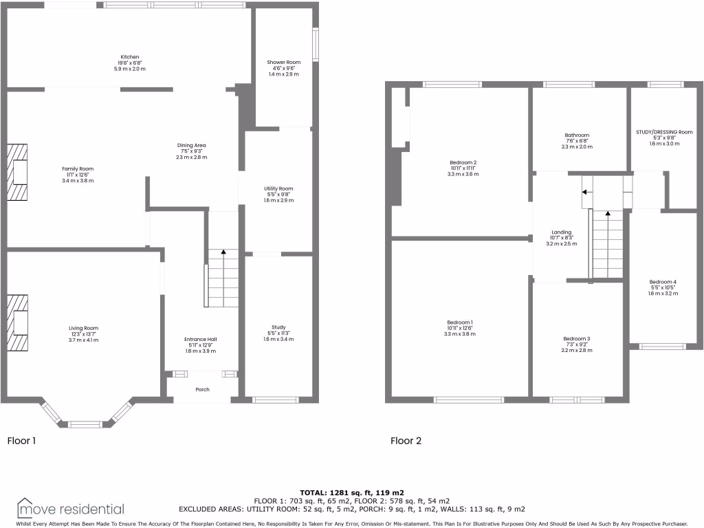
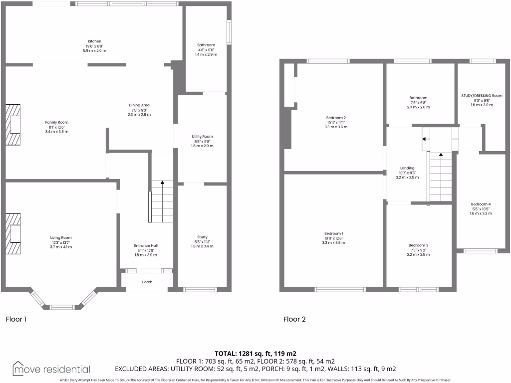
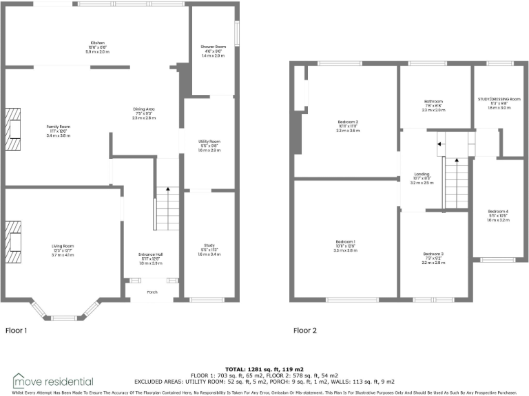
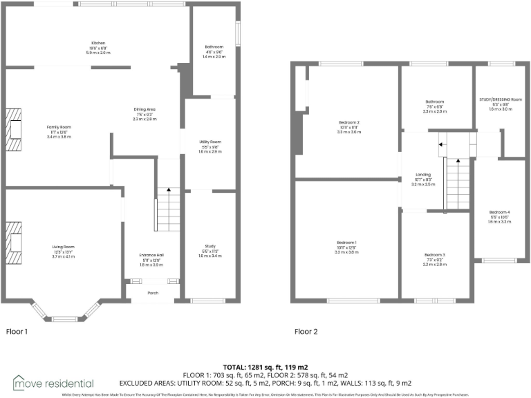
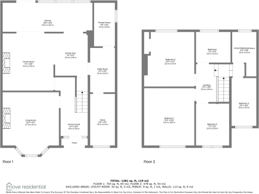
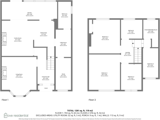
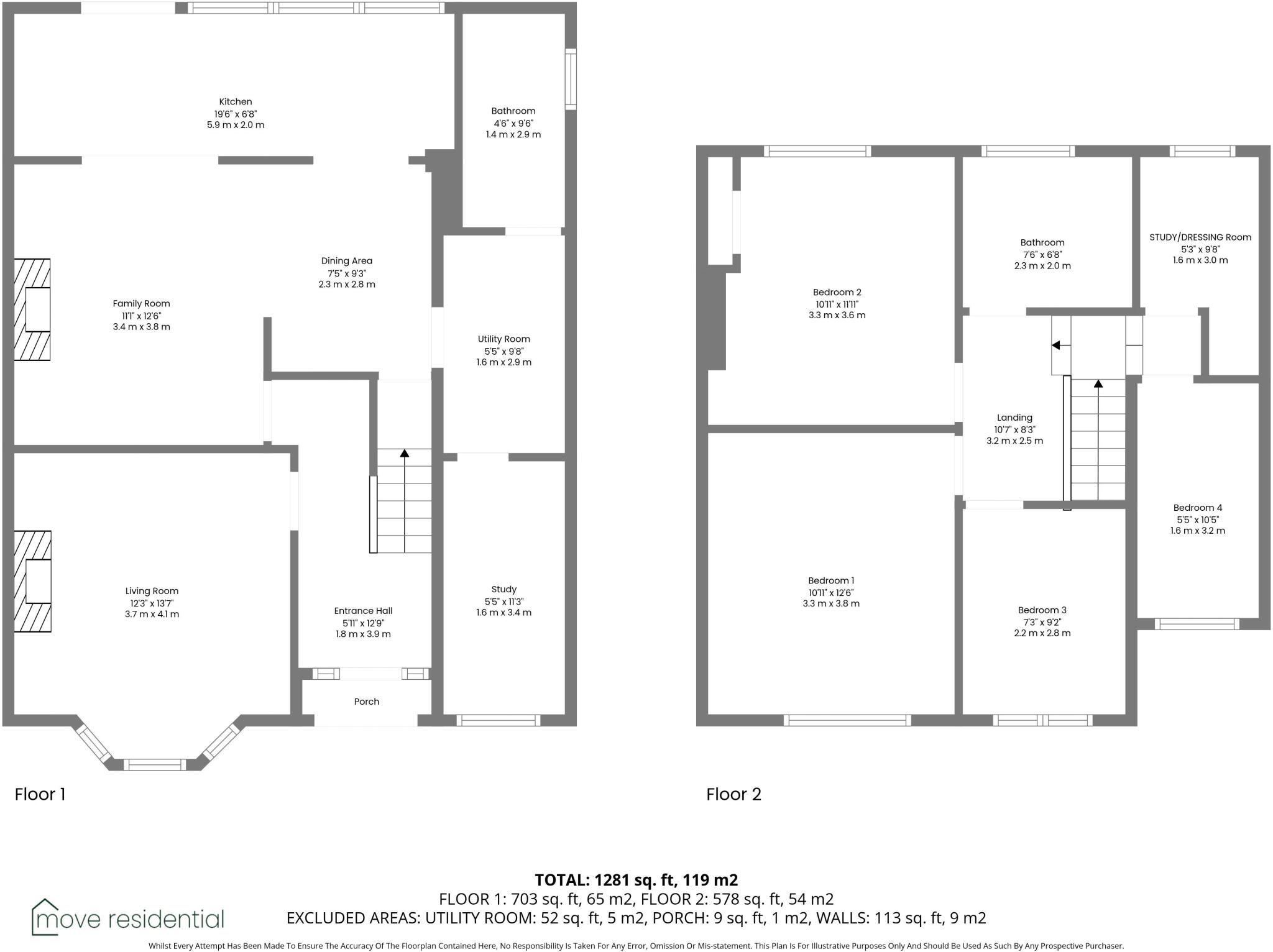
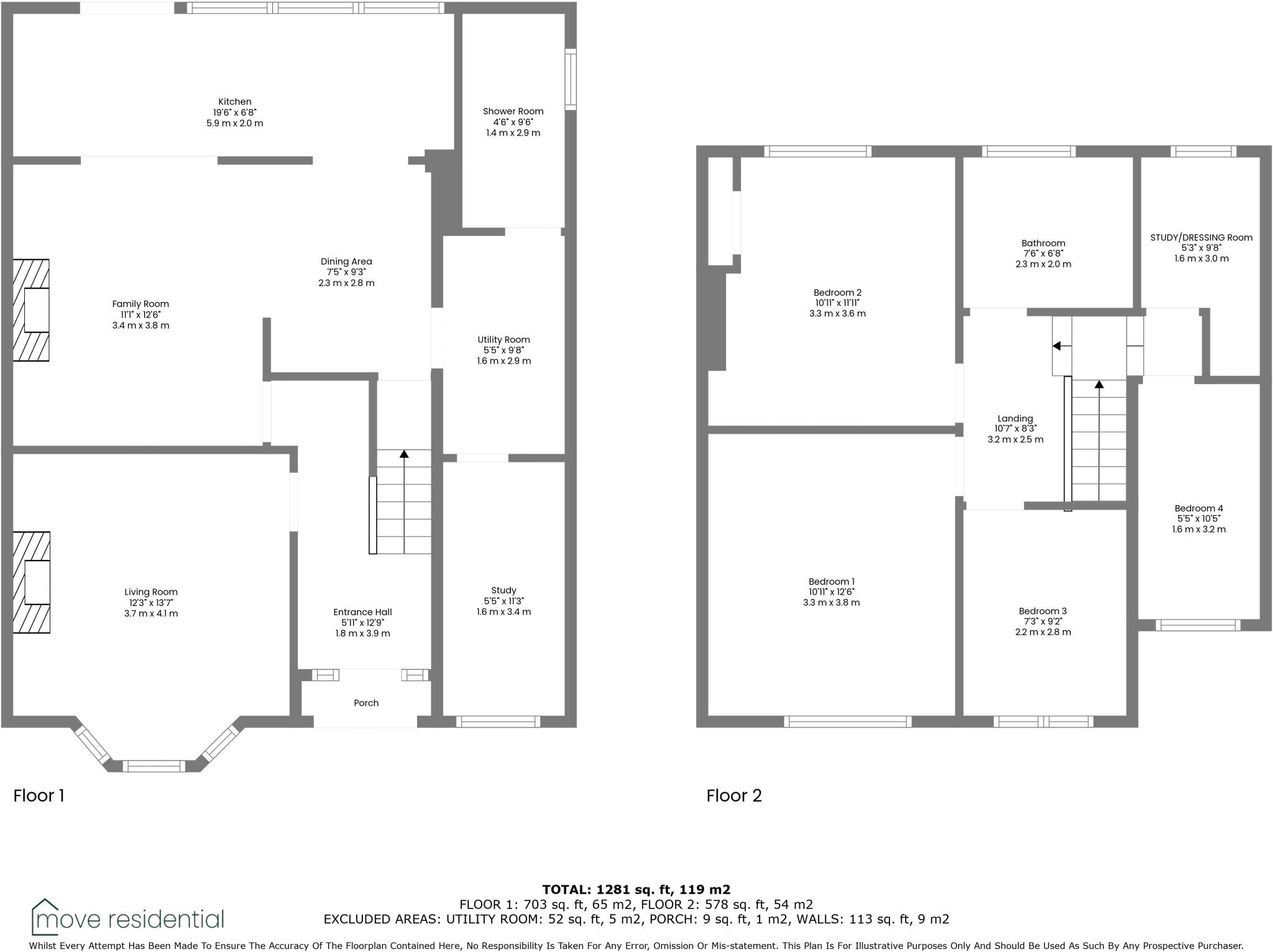
Set on Heydale Road in desirable Mossley Hill, this extended four-bedroom semi-detached house provides versatile living over two floors, suited to a growing household. The ground floor offers two reception rooms including a bay-fronted lounge, a dining area that flows into a substantial kitchen, plus a downstairs shower room, utility and a dedicated home office. Upstairs there are four bright bedrooms, a family bathroom and a useful dressing room/home study.
Outside, a landscaped rear garden with lawn and flagged patio creates a low-maintenance private outdoor space, while a paved forecourt provides off-street parking for two vehicles. Constructed with rendered elevations and period proportions, the house delivers kerb appeal and the practical benefits of double glazing and modern connectivity (excellent mobile signal, fast broadband).
Practical details strengthen the proposition: freehold tenure, affordable council tax banding and no identified flood risk. The location is family-friendly with several highly regarded schools nearby, regular bus routes and local amenities within easy reach.
Notable considerations: the overall internal area is average for a four-bedroom home (approximately 1,281 sq ft) so buyers should review room sizes for specific needs. There are no long-distance views and the property sits within a residential terrace/semi context, so neighbouring houses are close by. A viewing is recommended to assess decorative condition and any modernisation preferences.
4 bedroom terraced house for sale in Mayville Road, Mossley Hill, Liverpool, L18 — £450,000 • 4 bed • 2 bath • 1655 ft²
4 bedroom semi-detached house for sale in Booker Avenue, Mossley Hill, Liverpool, L18 — £550,000 • 4 bed • 3 bath • 1640 ft²
3 bedroom semi-detached house for sale in Cairnmore Road, Mossley Hill, Liverpool, L18 — £410,000 • 3 bed • 1 bath • 1133 ft²
3 bedroom semi-detached house for sale in Mapledale Road, Mossley Hill, Liverpool, L18 — £300,000 • 3 bed • 1 bath • 826 ft²
3 bedroom semi-detached house for sale in Herondale Road, Mossley Hill, Liverpool, L18 — £325,000 • 3 bed • 1 bath • 888 ft²
4 bedroom terraced house for sale in Rutherford Road, Mossley Hill, L18 — £420,000 • 4 bed • 1 bath • 1226 ft²










































































