YO26 4TZ - 4 bedroom semidetached house for sale in Grantham Drive, Yo…

View on Property Piper

4 bedroom semi-detached house for sale in Grantham Drive, York, YO26 4TZ, YO26

Summary - 42, Grantham Drive, YORK YO26 4TZ

4 bed 2 bath Semi-Detached

No onward chain — vacant possession available
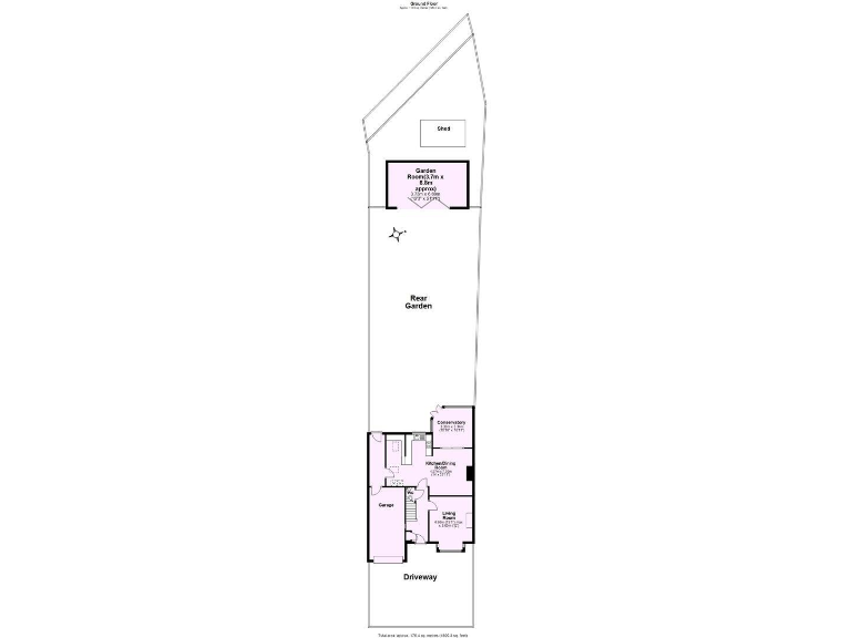
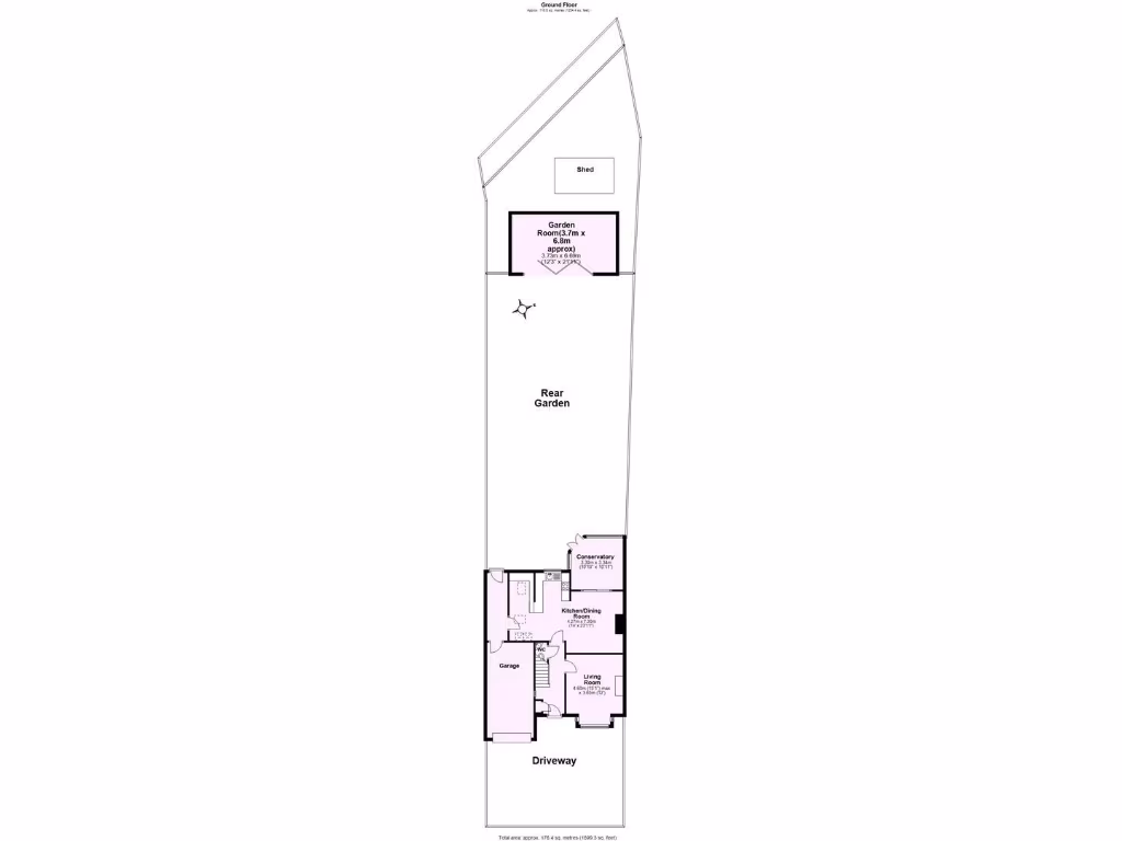
Set on a generous, tree-lined plot in sought-after Holgate, this extended 1930s semi-detached house offers flexible family living with no onward chain. The heart of the home is an open-plan kitchen and family snug with a log-burning stove, flowing through to a conservatory and a substantial west-facing garden that enjoys afternoon and evening sun.

Upstairs are four well-proportioned bedrooms served by a family bathroom and a separate shower room — a layout that suits a growing family or multi-generation living. A large, fully insulated garden room with full-width bifold doors adds versatile space for a home office, gym or entertaining area. Practical assets include an integral garage, driveway parking for several cars and good broadband and mobile signals.

Built in the 1930s, the property retains period proportions and a solid construction (filled cavity walls) but some elements reflect its age. The double glazing was installed prior to 2002 and routine updating may be required; buyers should expect cosmetic modernisation rather than a full refurbishment. Council tax is described as affordable and there is no flood risk.

Location is a genuine asset: Grantham Drive lies conveniently west of York city centre with easy access to the ring road, good local schools and the shops and cafés on Acomb Front Street. For families wanting space, privacy and flexibility close to the city, this home represents a rare, chain-free opportunity to move in and adapt over time.

Property Details

Brochure Descriptions

Image Descriptions

Floorplan Description

Rooms

Textual Property Features

Detected Visual Features

EPC Details

Nearby Schools

Nearest Bars And Restaurants

,,,,}

Nearest General Shops

,,}

Nearest Grocery shops

,,}

Nearest Supermarkets

,,}

Nearest Religious buildings

,,}

Nearest Medical buildings

,,,}

Nearest Airports

}

Nearest Leisure Facilities

,,,,}

Nearest Tourist attractions

,,}

Nearest Train stations

,,,,}

Nearest Bus stations and stops

,,,,}

Nearest Hotels

,,}

Tags

Local Market Stats

AirBnB Data

Meta

High Res Images

Compatible Images

Low res Images

Thumbnails

Raw Images

High Res Floorplan Images

Compatible Floorplan Images

Low res Floorplan Images

FloorplanImages Thumbnail

Raw Floorplan Images