Smartly updated terrace with conservatory and low‑maintenance garden close to trains.
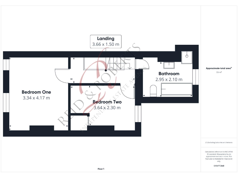
Two double bedrooms with rear countryside views
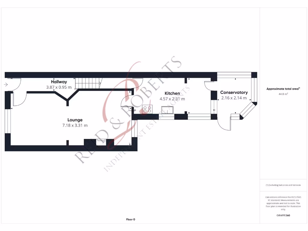
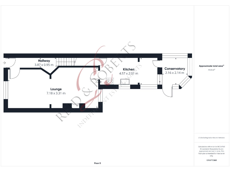
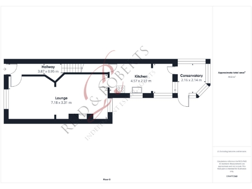
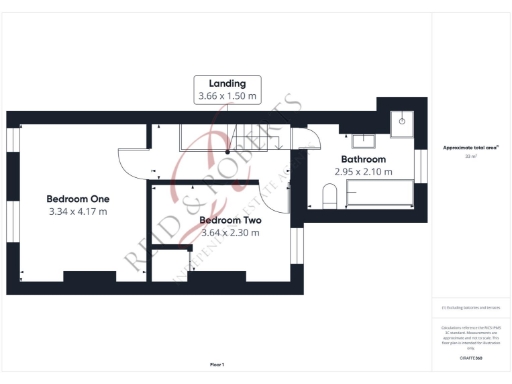
This two-bedroom mid-terrace on Hawarden Road offers a smart, move-in-ready layout with genuine character and useful modern upgrades. A recently upcycled kitchen with breakfast bar and a bright conservatory extend the living space, while the open-plan lounge and dining area retain period touches such as a fireplace. The property is freehold and compact at about 824 sq ft, ideal for a first home, downsizer or buy-to-let starter.
Both bedrooms are doubles and the rear windows look over open countryside, a rare plus for a terraced village home. The family bathroom is modern and includes both a corner bath and a separate shower cubicle. The rear garden is terraced and deliberately low-maintenance, with paved areas, gravel and artificial lawn that suit easy upkeep but offer limited planting or play space.
Practical positives include fast broadband, excellent mobile signal and a short walk to Caergwrle train station and local amenities. Council tax band C is affordable. Important considerations: the plot is small and multi-level, which may be awkward for mobility or families wanting larger outdoor space. The area falls within a very deprived district, which may influence resale expectations and local services. Overall, this property suits buyers seeking a characterful, conveniently located two-bed with low running fuss and countryside outlooks rather than extensive grounds.
2 bedroom end of terrace house for sale in Castle Street, Caergwrle, Wrexham, Flintshire, LL12 — £159,950 • 2 bed • 1 bath • 926 ft²
3 bedroom end of terrace house for sale in Hawarden Road, Caergwrle, Wrexham, LL12 — £150,000 • 3 bed • 1 bath • 384 ft²
2 bedroom house for sale in Rhyddyn Hill, Caergwrle, Wrexham, LL12 — £295,000 • 2 bed • 1 bath • 974 ft²
2 bedroom terraced house for sale in Green Lane, Sealand, Deeside, CH5 — £160,000 • 2 bed • 1 bath • 546 ft²
3 bedroom semi-detached house for sale in Wrexham Road, Caergwrle, LL12 — £170,000 • 3 bed • 2 bath • 905 ft²
2 bedroom terraced house for sale in School Street, Rhosllanerchrugog, Wrexham, LL14 — £115,000 • 2 bed • 1 bath • 636 ft²










































































































