Exceptional family living opposite Royal Botanic Gardens with flexible layout and private flat.
- Substantial detached Victorian house, circa 1900-1929
- Large landscaped garden with seamless open-plan access
- Spacious open-plan kitchen and living space with skylights
- Five bedrooms, five bathrooms; top-floor two-bed flat separate title
- Wine cellar and generous reception rooms across three floors
- Ample off-street parking for multiple vehicles
- Newly renovated to high standards; planning to reinstate one dwelling granted
- Solid brick walls; consider insulation improvements and mixed EPC ratings
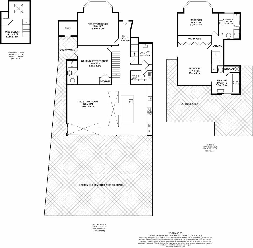
Set on a large plot close to the Royal Botanic Gardens, this extensively remodelled period house combines original character with high-spec contemporary finishes. The rear hosts a huge open-plan kitchen and living area with skylights and seamless access to beautifully landscaped gardens — ideal for family life and entertaining.
Accommodation extends over three floors plus a notable wine cellar; the top floor is currently a self-contained two-bedroom, two-bathroom flat held on a separate title, offering rental income potential or flexible living arrangements. Total internal area is approximately 3,250 sq ft, with five double bedrooms and five bathrooms in the current layout.
Practical merits include ample off-street parking, mains gas central heating, secondary glazing and fast broadband. Planning permission has been granted to reinstate the property back into a single dwelling if required, giving buyers clear options. EPCs are mixed across the property (reported as C and E), and the solid brick construction suggests improvements to insulation could be considered.
This home will suit families wanting generous, high-quality living close to excellent schools and transport links into central London, or buyers seeking a high-end rental opportunity with immediate flexible layouts. The recent renovation means much is turnkey, though buyers should note the separate title for the top-floor flat and potential insulation upgrades to optimise energy performance.
5 bedroom detached house for sale in Mortlake Road, Richmond, TW9 — £2,950,000 • 5 bed • 5 bath • 3468 ft²
4 bedroom detached house for sale in Lion Gate Gardens, Kew, Surrey, TW9 — £3,000,000 • 4 bed • 4 bath • 2500 ft²
5 bedroom detached house for sale in Ennerdale Road, Kew, Surrey, TW9 — £3,500,000 • 5 bed • 4 bath • 3800 ft²
5 bedroom semi-detached house for sale in Taylor Avenue, Kew, Surrey, TW9 — £2,950,000 • 5 bed • 4 bath • 3402 ft²
6 bedroom detached house for sale in Lichfield Road, Kew, Surrey, TW9 — £5,250,000 • 6 bed • 5 bath • 3605 ft²
5 bedroom end of terrace house for sale in Defoe Avenue, Kew, London, TW9 — £1,595,000 • 5 bed • 2 bath • 2017 ft²


















































































































































































