**Standout Features:**
- HMO licensed for 4 people
- Three spacious double bedrooms
- Close proximity to the University of South Wales and local amenities
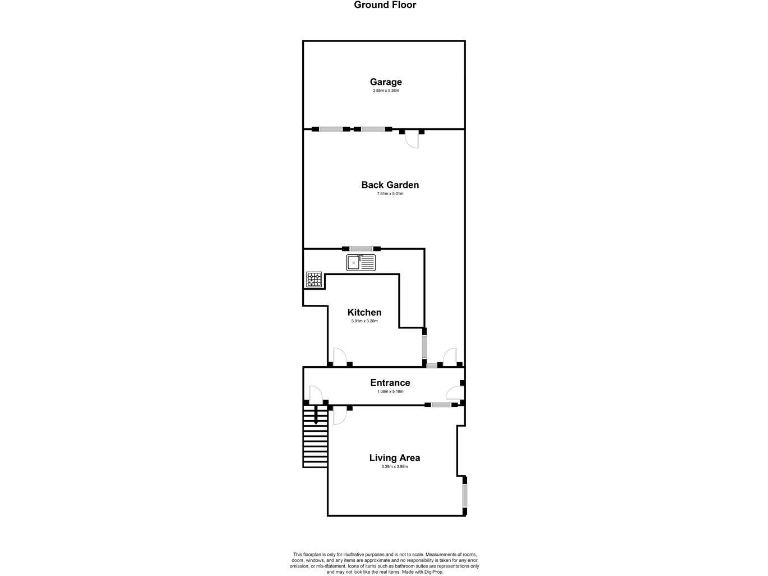
- Garage and rear garden
- Low council tax and fast broadband speeds
**Potential Concerns:**
- Small overall size (673 sq ft) may not suit larger families
- The property is in an area marked as very deprived
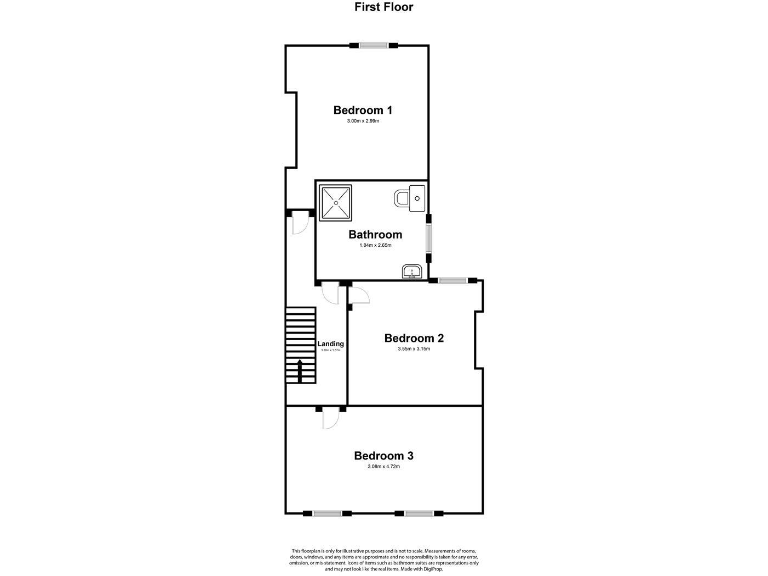
This end terrace property combines classic charm with investment potential, featuring three double bedrooms and an HMO license for four occupants, ideal for investors targeting the student rental market. Situated a stone's throw from the Treforest campus of the University of South Wales and various local amenities, this property promises consistent occupancy during the academic year, enhancing your investment appeal.
The main floor features a welcoming entrance hallway leading to a lounge and kitchen, while upstairs, you'll find the three ample bedrooms and a functional bathroom. A private rear garden and garage offer added value for tenants. While the property is small at 673 sq ft and is located in a very deprived area, its excellent mobile signal and fast broadband make it a comfortable choice for student living.
Don't miss out on this unique investment opportunity in a bustling student-friendly neighborhood – secure your viewing today!
3 bedroom house for sale in Oakwood Street, Treforest, Pontypridd, CF37 — £114,950 • 3 bed • 1 bath • 326 ft²
4 bedroom terraced house for sale in Park Street, Pontypridd, CF37 — £140,000 • 4 bed • 1 bath • 980 ft²
4 bedroom terraced house for sale in Park Street, Pontypridd, CF37 — £140,000 • 4 bed • 1 bath • 1023 ft²
3 bedroom end of terrace house for sale in Wood Road, Treforest, Pontypridd, CF37 1RQ, CF37 — £129,950 • 3 bed • 1 bath • 730 ft²
3 bedroom house for sale in Stow Hill, Pontypridd, CF37 1RZ, CF37 — £135,000 • 3 bed • 1 bath • 1140 ft²
5 bedroom end of terrace house for sale in Llantwit Road, Treforest, Pontypridd, CF37 — £156,000 • 5 bed • 2 bath • 956 ft²






























































































