Quiet cul-de-sac with garage, parking and easy school access.
3 bedrooms with practical, flexible living layout
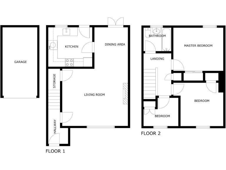
Set in a quiet cul-de-sac in sought-after Long Marton, this mid-20th-century terraced home offers straightforward family living with flexible, well-proportioned rooms. The ground floor provides a living room, separate dining room and a modern kitchen, while three bedrooms and a bathroom sit on the first floor — a practical layout for a growing household.
Outside there are enclosed front and rear gardens, a single garage and an allocated parking space nearby, a useful combination rarely found in village locations. The property has double glazing (installed 2002 or later) and has been maintained and improved in recent years, with fast broadband availability and a very low council tax band adding to the running-cost advantages.
Buyers should note the plot is modest in size and there is a single family bathroom. Heating is by boiler and radiators with smokeless fuel recorded as the main fuel; the vendor also notes LPG-powered central heating services. Neither services nor heating appliances have been tested, so any purchaser should arrange their own checks. Constructed in the 1950–1966 era, the house presents immediate liveability with scope for modest updating to personalise.
This location will particularly suit families wanting a village community with a well-regarded primary school within easy walking distance, while Penrith and Appleby are both readily accessible for wider amenities. Viewing is recommended to appreciate the accommodation, outdoor space and parking arrangement on offer.
3 bedroom house for sale in Long Marton, Appleby-In-Westmorland, CA16 — £225,000 • 3 bed • 2 bath • 1447 ft²
3 bedroom end of terrace house for sale in Long Marton, Appleby-In-Westmorland, CA16 — £205,000 • 3 bed • 1 bath • 904 ft²
3 bedroom cottage for sale in Long Marton, Appleby-In-Westmorland, CA16 — £240,000 • 3 bed • 1 bath • 764 ft²
3 bedroom detached house for sale in Long Marton, Appleby-in-Westmorland, CA16 — £425,000 • 3 bed • 1 bath • 1270 ft²
4 bedroom barn conversion for sale in Long Marton, Appleby-In-Westmorland, CA16 — £449,000 • 4 bed • 2 bath • 2117 ft²
3 bedroom end of terrace house for sale in Chapel Garth, Warcop,CA16 6PG, CA16 — £270,000 • 3 bed • 1 bath • 915 ft²






























































