Compact, well-located one-bed with parking — sold at auction.
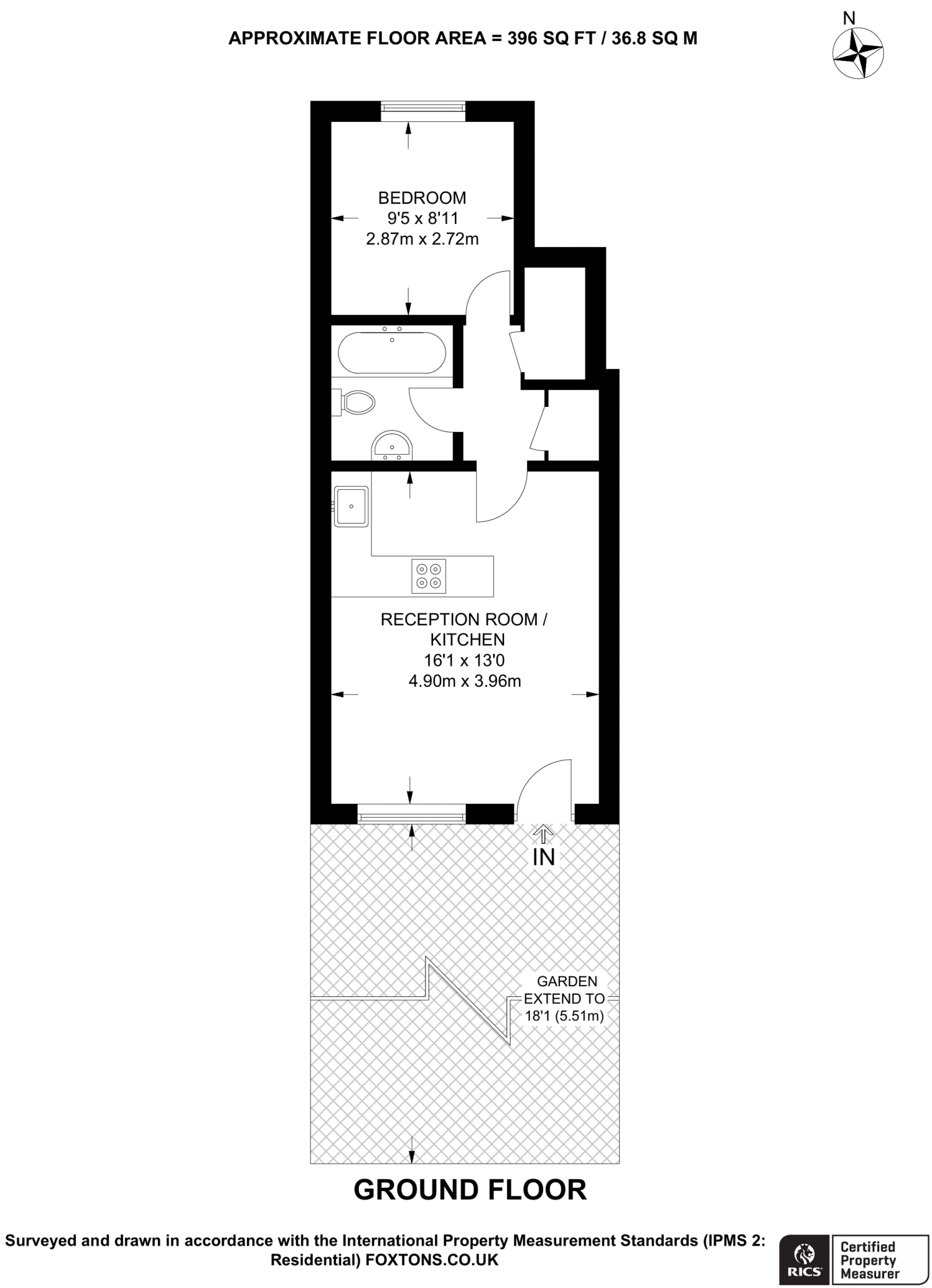
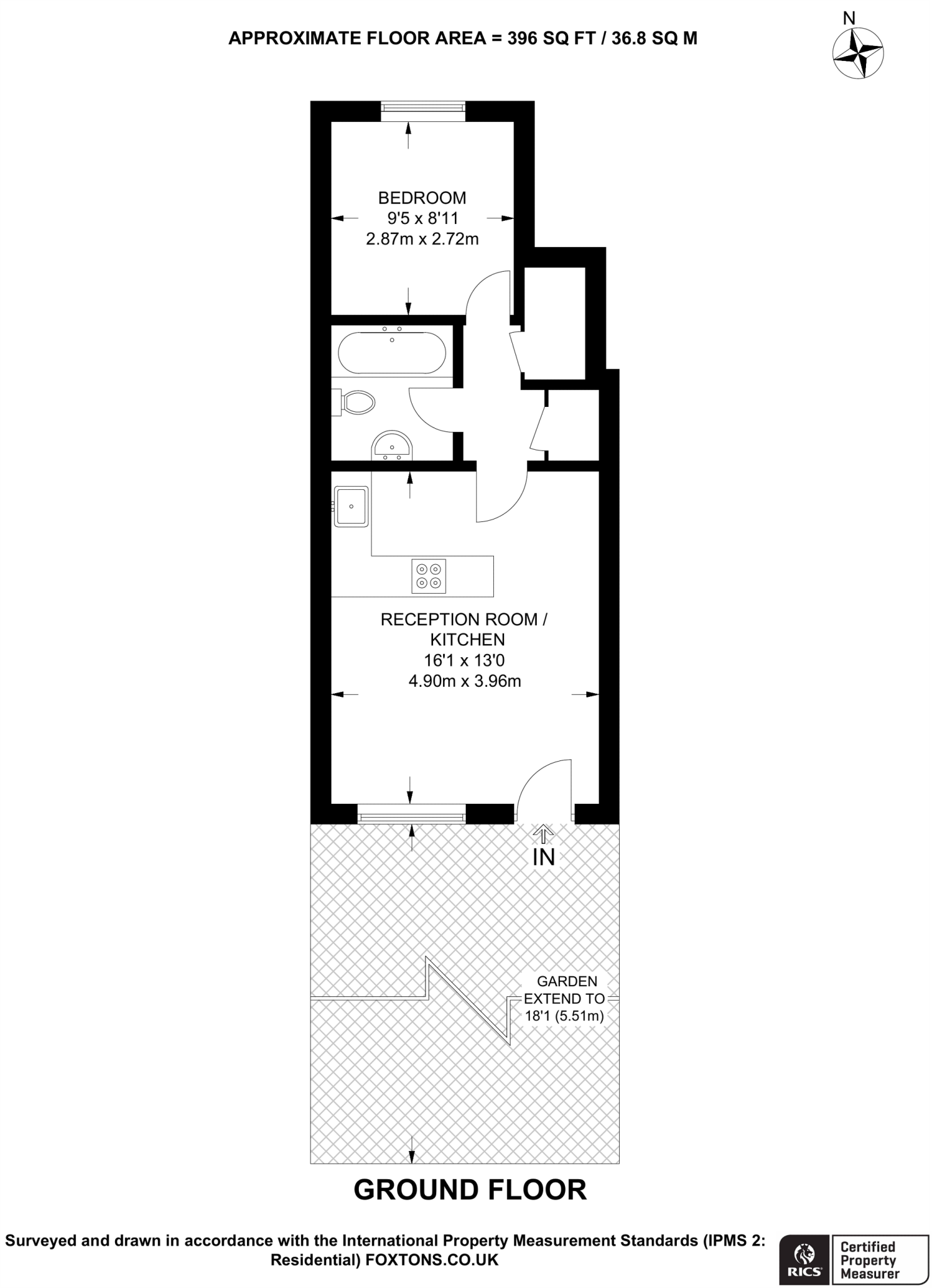
Ground-floor 1-bedroom flat, compact 396 sq ft
A compact ground-floor 1-bedroom flat in Bermondsey, offering a straightforward layout and a useful private parking space. The open-plan reception maximises the apartment’s 396 sq ft, and a roomy double bedroom plus ample built-in storage make this a practical home for a single buyer or couple.
Practical strengths include off-street parking to the front, very low flood risk, fast broadband and excellent mobile signal. The building dates from the late 1990s/early 2000s and benefits from double glazing; main heating is electric ceiling heating, which keeps installation simple but may mean higher running costs compared with gas.
Notable matters: the property is leasehold with 88 years remaining and a small ground rent of £150. The flat will be sold at auction (prior purchase available), so buyers should be prepared for a faster transaction process and to check auction terms. The compact kitchen is dated and will need modernising to suit contemporary tastes.
Located close to Burgess Park and local shops, cafés and transport links, this apartment offers entry-level central-London living. It will suit a first-time buyer seeking a manageable, well-located home or an investor looking for a straightforward let — provided they accept the lease length and electric heating arrangement.
1 bedroom flat for sale in Longfellow Way, Bermondsey, London, SE1 — £205,000 • 1 bed • 1 bath • 388 ft²
1 bedroom flat for sale in Chaucer Drive, Bermondsey, London, SE1 — £270,000 • 1 bed • 1 bath • 446 ft²
1 bedroom flat for sale in Burcher Gale Grove, London, SE15 — £220,000 • 1 bed • 1 bath • 468 ft²
1 bedroom flat for sale in Lynton Road, Bermondsey, London, SE1 — £265,000 • 1 bed • 1 bath • 459 ft²
1 bedroom apartment for sale in Longfellow Way, London, SE1 — £280,000 • 1 bed • 1 bath • 488 ft²
1 bedroom flat for sale in Fern Walk, Bemrondsey, London, SE16 — £300,000 • 1 bed • 1 bath • 481 ft²






























































































