Single-level living with garden, garage and conservatory in sought-after Bramford..
South-facing rear garden with patio and lawn
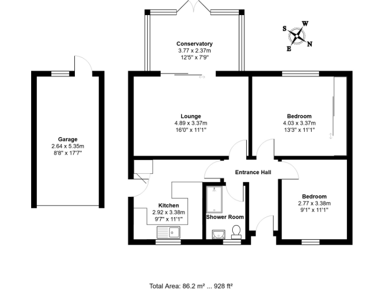
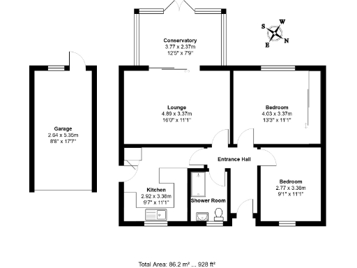
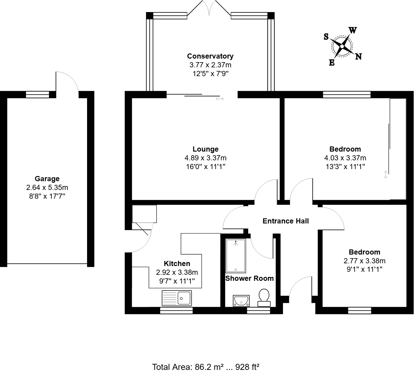
Two double bedrooms with built-in wardrobes
Conservatory/dining room with French doors to garden
Driveway parking plus single garage with electric roller shutter
Single-storey layout — ideal for downsizers or limited mobility
Freehold, no local flood risk; council tax Band B (mid Suffolk)
Broadband speeds reported as slow — check before remote working
Some modernisation and energy-efficiency improvements likely needed
This well-proportioned two-bedroom semi-detached bungalow sits in sought-after Bramford, offering comfortable single‑level living ideal for downsizers or buyers wanting a low‑maintenance home. The accommodation includes a bright lounge that opens to a conservatory/dining room, a contemporary kitchen, two double bedrooms with built-in storage and a modern shower room. A south‑facing rear garden and slabbed patio provide pleasant outdoor space for fishing the sun or container gardening.
Practical amenities include a driveway, a 17'5" single garage with electric roller shutter, loft access and useful pantry space in the kitchen. The plot is a decent size for the area and the property is freehold with no local flood risk; council tax sits at Band B which keeps running costs modest. The overall footprint of about 928 sq ft gives comfortable living without high upkeep.
Notable considerations: broadband speeds in the area are reported as slow, and there is scope to improve energy efficiency and modernise some internal finishes to personal taste. Buyers should also verify operational status of appliances, heating and electrics at survey — no appliances or systems have been independently tested. The price guide of £280,000 reflects the village location and single‑storey convenience but factors in potential upgrade costs.
This bungalow will appeal to those seeking straightforward, accessible accommodation close to local schools and amenities in an affluent, low‑crime neighbourhood. It’s immediately liveable yet offers clear potential to add value through cosmetic updating and energy improvements.
2 bedroom bungalow for sale in Chapel Field, Bramford, Ipswich, Suffolk, IP8 — £300,000 • 2 bed • 1 bath • 912 ft²
2 bedroom semi-detached bungalow for sale in Ravens Lane, Bramford, Ipswich, Suffolk, IP8 — £259,995 • 2 bed • 1 bath • 933 ft²
2 bedroom semi-detached bungalow for sale in Orchard Road, IP8 — £280,000 • 2 bed • 1 bath • 963 ft²
2 bedroom detached bungalow for sale in The Street, Bramford, Ipswich, Suffolk, IP8 — £300,000 • 2 bed • 1 bath • 1052 ft²
2 bedroom bungalow for sale in Broke Avenue, Bramford, Ipswich, Suffolk, IP8 — £325,000 • 2 bed • 1 bath • 938 ft²
2 bedroom bungalow for sale in Packard Place, Bramford, Ipswich, Suffolk, IP8 — £290,000 • 2 bed • 1 bath • 900 ft²






































