Chain-free home within easy walk of station, harbour and town amenities.
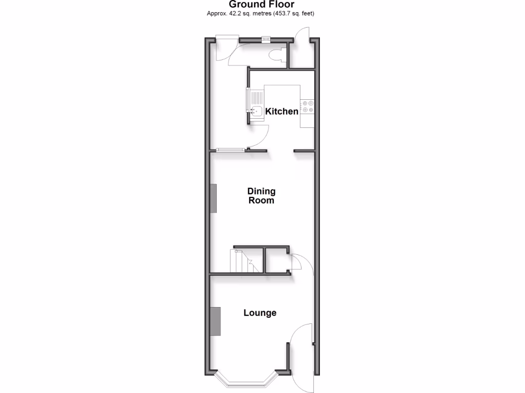
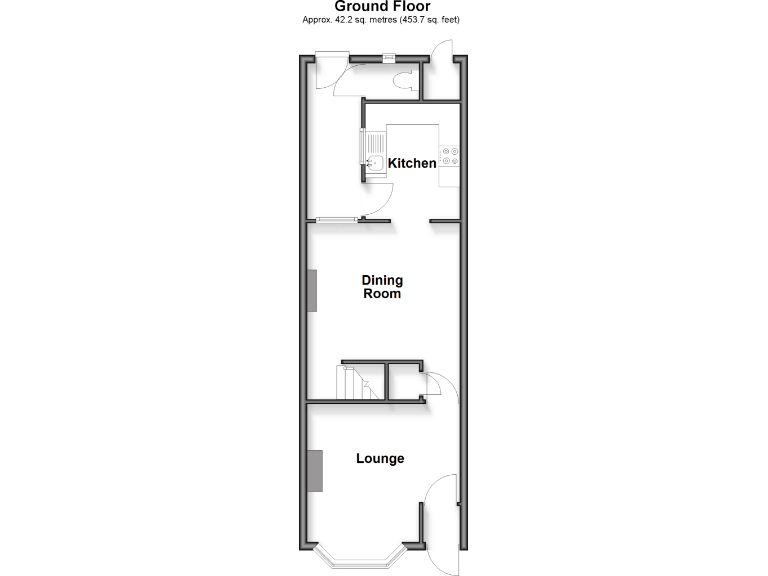
Chain-free mid-terrace with period bay living room and separate dining room
Short walk to train station, High Street, harbour and local amenities
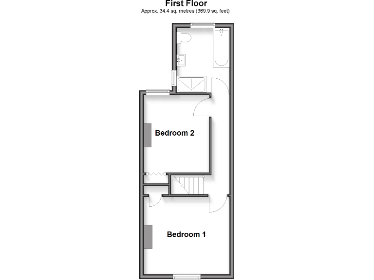
Two bedrooms, one bathroom; overall footprint ~754 sq ft
Solid brick walls; likely no cavity insulation — modernisation required
Small front and rear gardens; lean-to provides extra basic space
Local area: very high crime and very deprived — affects resale/letting prospects
Fast broadband and excellent mobile signal; good primary schools nearby
Requires updating: décor dated, small rooms, possible electrical/heating upgrades
Set a short walk from the station, High Street and Queenborough Harbour, this chain-free mid-terrace offers clear potential for first-time buyers and investors. The house retains period character — a high-ceilinged bay living room and separate dining room — and benefits from double glazing and gas central heating. The footprint is modest at about 754 sq ft, with a small front and rear garden and straightforward room layout over two floors.
The property is a sensible project rather than a finished home. Rooms are generally small and décor is dated; the wall construction is solid brick with no known insulation and some updating will be needed to modernise heating, electrics and finishes. The rear lean-to and downstairs cloakroom add usable space but are basic.
Location is the strongest selling point: excellent local transport links, fast broadband and nearby primary schools (including an Outstanding school) will suit buyers wanting convenience or rental appeal. Be aware the local area scores high for deprivation and recorded crime rates are very high, which will affect long-term resale and lettings; buyers should factor refurbishment costs and local context into offer decisions.
2 bedroom end of terrace house for sale in North Road, Queenborough, ME11 — £225,000 • 2 bed • 1 bath • 533 ft²
2 bedroom terraced house for sale in Wellesley Road, Sheerness, Kent, ME12 — £210,000 • 2 bed • 1 bath • 848 ft²
3 bedroom terraced house for sale in Gordon Avenue,Queenborough,ME11 5BD, ME11 — £210,000 • 3 bed • 1 bath • 650 ft²
2 bedroom terraced house for sale in North Street, Sittingbourne, Kent, ME10 — £240,000 • 2 bed • 1 bath • 636 ft²
3 bedroom terraced house for sale in Unity Street, Sheerness, Kent, ME12 — £165,000 • 3 bed • 1 bath • 840 ft²
3 bedroom end of terrace house for sale in Stanley Avenue, Queenborough, ME11 5DT, ME11 — £230,000 • 3 bed • 1 bath • 790 ft²


















































