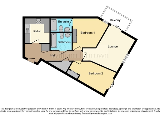
Balcony, allocated parking and walking distance to Hertford East station.
• Two double bedrooms with fitted wardrobes
• Master bedroom with en‑suite double shower
• Dual-aspect lounge with private balcony
• Modern fitted kitchen with integrated appliances
• Allocated underground parking plus visitor spaces
• Leasehold: approx. 145 years remaining
• Service charge c. £1,500pa; ground rent c. £300pa
• Walking distance to Hertford East station and town centre
A bright, well-presented two-bedroom, two-bathroom first-floor apartment offering 646 sq ft of comfortable living in central Hertford. The dual-aspect lounge opens onto a private balcony overlooking communal gardens, and the master bedroom benefits from an en‑suite shower and fitted wardrobes. The modern kitchen includes integrated appliances and there is one allocated underground parking space.
This home suits first-time buyers or buy-to-let investors seeking a low-maintenance, contemporary property close to transport and amenities. Hertford East station and the town centre are within easy walking distance, and several highly rated local schools are nearby, making this a practical choice for commuters and small families.
Practical points to note: the property is leasehold with approximately 145 years remaining, a service charge of about £1,500pa and ground rent of about £300pa. Mobile signal and local crime levels are average. Prospective buyers should verify service arrangements, running costs and obtain a survey if required.
2 bedroom flat for sale in Constables Way, Kingsmead Court, Hertford, SG13 — £325,000 • 2 bed • 2 bath • 732 ft²
2 bedroom apartment for sale in Kingsmead Court - Hertford, SG13 — £332,500 • 2 bed • 2 bath • 734 ft²
2 bedroom apartment for sale in Constables Way, Hertford, SG13 — £300,000 • 2 bed • 2 bath • 708 ft²
2 bedroom flat for sale in Newland Gardens, Hertford, SG13 — £350,000 • 2 bed • 2 bath • 798 ft²
2 bedroom flat for sale in Claud Hamilton Way, Hertford, SG14 — £315,000 • 2 bed • 2 bath • 688 ft²
2 bedroom apartment for sale in Pimlico Court, Pegs Lane, Hertford, SG13 — £279,995 • 2 bed • 2 bath • 659 ft²






































































