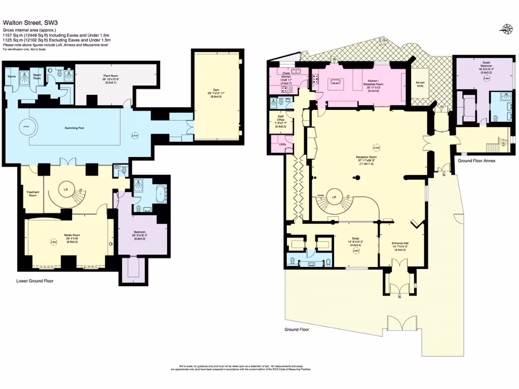
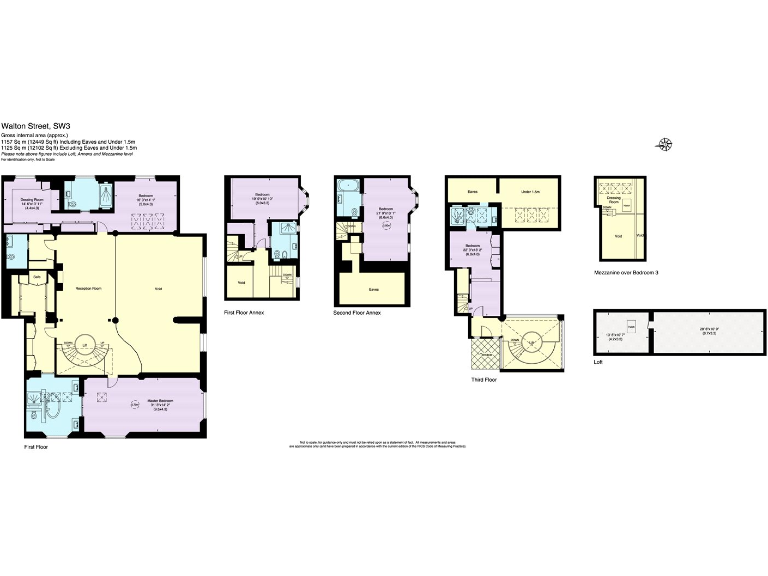
Dramatic Grade II townhouse with pool, lift and parking for three cars.
Approximately 12,102 sq ft of exceptional internal space
An extraordinary Grade II listed semi‑detached house in the heart of Knightsbridge, arranged over multiple levels and extending to approximately 12,102 sq ft. The conversion retains dramatic period features — 12‑metre vaulted ceilings, original stone pillars and oak beams — combined with contemporary high‑spec finishes including a glass lift and striking atrium-style vertical circulation.
Accommodation includes seven double bedroom suites, four to five reception rooms and a dedicated leisure floor with indoor swimming pool, gym, treatment room, sauna, steam room and media/bar area. Off‑street parking for three cars is rare for central SW3 and adds practical convenience for owners or guests.
This is a premium, city‑centre family residence that will also appeal to buyers seeking a high‑end investment in a prime Knightsbridge location. Important practical points: the property is Grade II listed, which will restrict alterations and may prolong consent processes; there is limited private outdoor space; and the local area records very high crime levels, which may affect security considerations and insurance costs.
Offered freehold at a top-tier price point, the house suits purchasers who value distinctive architecture, large entertaining spaces and in-house leisure facilities, and who are prepared for the Listed‑building maintenance and management obligations that come with a historic conversion.
7 bedroom semi-detached house for sale in Walton Street, London, SW3 — £35,000,000 • 7 bed • 9 bath • 12449 ft²
3 bedroom house for sale in Hasting House, Walton Street, Knightsbridge, United Kingdom, SW3 — £11,950,000 • 3 bed • 4 bath • 5269 ft²
4 bedroom detached house for sale in Ennismore Street, Knightsbridge, London, SW7 — £9,950,000 • 4 bed • 4 bath • 4688 ft²
4 bedroom terraced house for sale in Walton Street, London, SW3 — £13,500,000 • 4 bed • 5 bath • 5270 ft²
5 bedroom house for sale in Knightsbridge Street , Knightsbridge, London, SW7, United Kingdom, SW7 — £12,950,000 • 5 bed • 5 bath • 5565 ft²
5 bedroom house for sale in Herbert Crescent, Knightsbridge, London, SW1X, United Kingdom, SW1X — £21,500,000 • 5 bed • 8 bath • 7535 ft²


























































































